AXIS Építésziroda

EN
  • Kezdőlap
  • Munkák
  • Rólunk
  • Kapcsolat

Egészségház, Tarcal


Középület Salamin Miklós
08005

tervezés éve:                 2011

kivitelezés éve:              2012

építész:                           Salamin Miklós

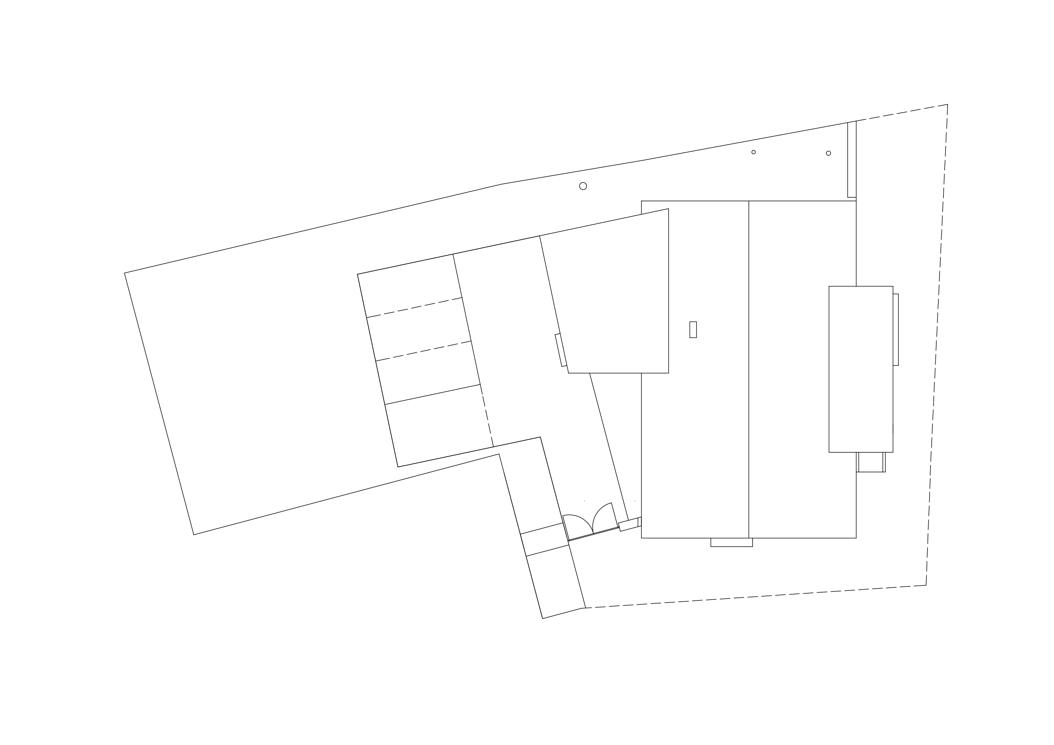
Alaprajz 3

Meglévő épület


        Az orvosi rendelő meglévő épülete a hetvenes években épült. Egyedi, mozgalmas tömegalakítása a települési utcaképbe nem illeszkedett szervesen. Az épület állapota szükségessé tette teljes belső és külső felújítását, illetve a homlokzati hőszigetelését.

Helyszinrajz 3
08003
08004

Felújítás és átalakítás


        A tervezés során két háziorvosi rendelőt és egy fogorvosi rendelőt alakítottunk ki, a várókkal és a kapcsolódó helyiségekkel együtt. A tervezett épülettömeg a régióra jellemző hagyományos, utcával párhuzamos nyeregtetős kialakítású lett. Az épület kőrészei a szomszédos Bodrogkeresztúrban, a helyi kőbányában bányászott kőből készültek, a kivitelező is helyi kötődésű, encsi kivitelező volt.

08017
08008
08001
08018
08012
08019
08010
08021
08027
08023
08020

Minden jog fenntartva © 2026