AXIS Architecture

HU
  • Home
  • Works
  • About
  • Contact

Old Vay-Castle, Golop


Monument Ferenc Salamin
Észak Nyugati Homlokzat

Location:                              

Architect:                              

Co-architect:

Architect assistant:

Gardenarchitect:                   

Stonemason:                          

Archeologist:                         

Planning/building:

Photos:                  

Golop

Ferenc Salamin

Gábor Erhardt

Pál Salamin

Attila Vince

István Kolyankovszky 

István Feld

2007/2012

Tamás Szántó, István Szász

CONSTRUCTION HISTORY

The building was constructed at the end of the 16th century, with floor slabs supported by timber beams and with vaulted ceilings in the corners. The first conversion took place at the very end of the Renaissance period when additional vaults were constructed in the ground-floor great hall and the basement. This was followed by several more alterations.


In the first half of the 18th century, the stone-framed windows were converted into larger windows with timber casements, and the stone-framed Renaissance doors were replaced with inset doors and wooden frames. It was also in this period that the extension known as the ‘granary’ was attached to the eastern wall of the building, and the middle room on the ground floor was divided. 


In the 1980s, the granary extension and the entrance building were demolished, while the roof and the upper wooden ceiling were replaced by a slab with reinforced concrete beams. After that the building was left in ruins for a protracted period, and most of the valuable carved stone disappeared. Before the renovation, the building was stripped of all its auxiliary structures, leaving only the walls, the slabs and the roof.


RENOVATION

The new owner requested that a high-quality residential mansion be built in accordance with the original purpose. Since the structure of the interior spaces has not changed significantly over the centuries, the renovation preserves, wherever possible, the character of the Renaissance castle built around 1590. In all the other parts, Baroque elements from the 18th century are the most prominent, along with other interesting details.

 

Since the main part of the building preserves the design of its original Renaissance builders, the roof was given a Renaissance shape. The Renaissance features on the façades, discovered during research, were restored, while elsewhere the Baroque elements dominate. The former annexes demolished in the 1980s were rebuilt with a different design centred on a wooden structure. No significant changes were made to the floor plan. Baths and bedrooms were added to the two corner towers and, as a new element, an internal staircase now connects the two lower levels. The central part of the building functions as a living room, while the vaulted Baroque kitchen on the ground floor was restored in its original location. Both entrances were preserved and extended with a covered wooden forecourt accessible via timber stairs. The former Baroque granary on the eastern side was also rebuilt as a carved wooden terrace.


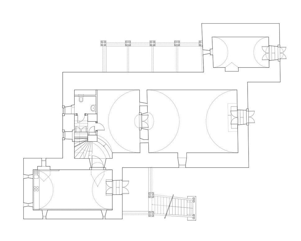
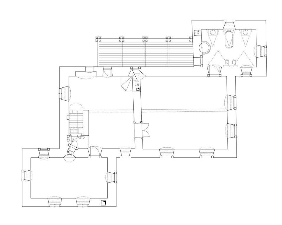
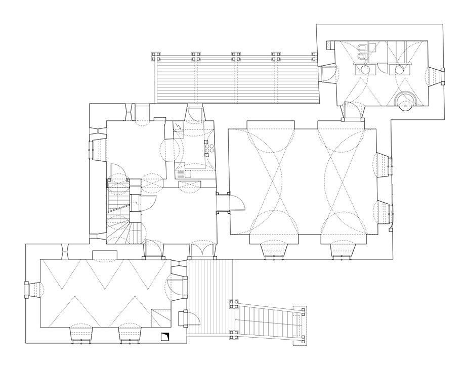
Pince
Fsz
Emeleti alaprajz
Dl Keleti Homlokzat 2
Ablak Rszlet 4
Bejrat
Ablak Rszlet 3
Ablak Rszlet 5
Dl Keleti Homlokzat 3
Bejrati Tornc
Emeleti Szoba 02
Fldszinti Terasz
Szak Nyugati Oldal Teraszai

All rights reserved © 2026