AXIS Architecture

HU
  • Home
  • Works
  • About
  • Contact

Two-flat apartment building, Veresegyház


Dwelling house Csaba Varga
Fotó

location:                                  Veresegyház

design:                                     2021

construction:                          2021 – 2023

lead architect:                      Varga Csaba

associate architect:             Vavrik Ferenc

structural:                                Donáczi Péter

building services:                  Erhardt Péter

electrical:                               Levek István

geodesy:                                Radványi Iván

Helyszínrajz
Fotó
Fotó

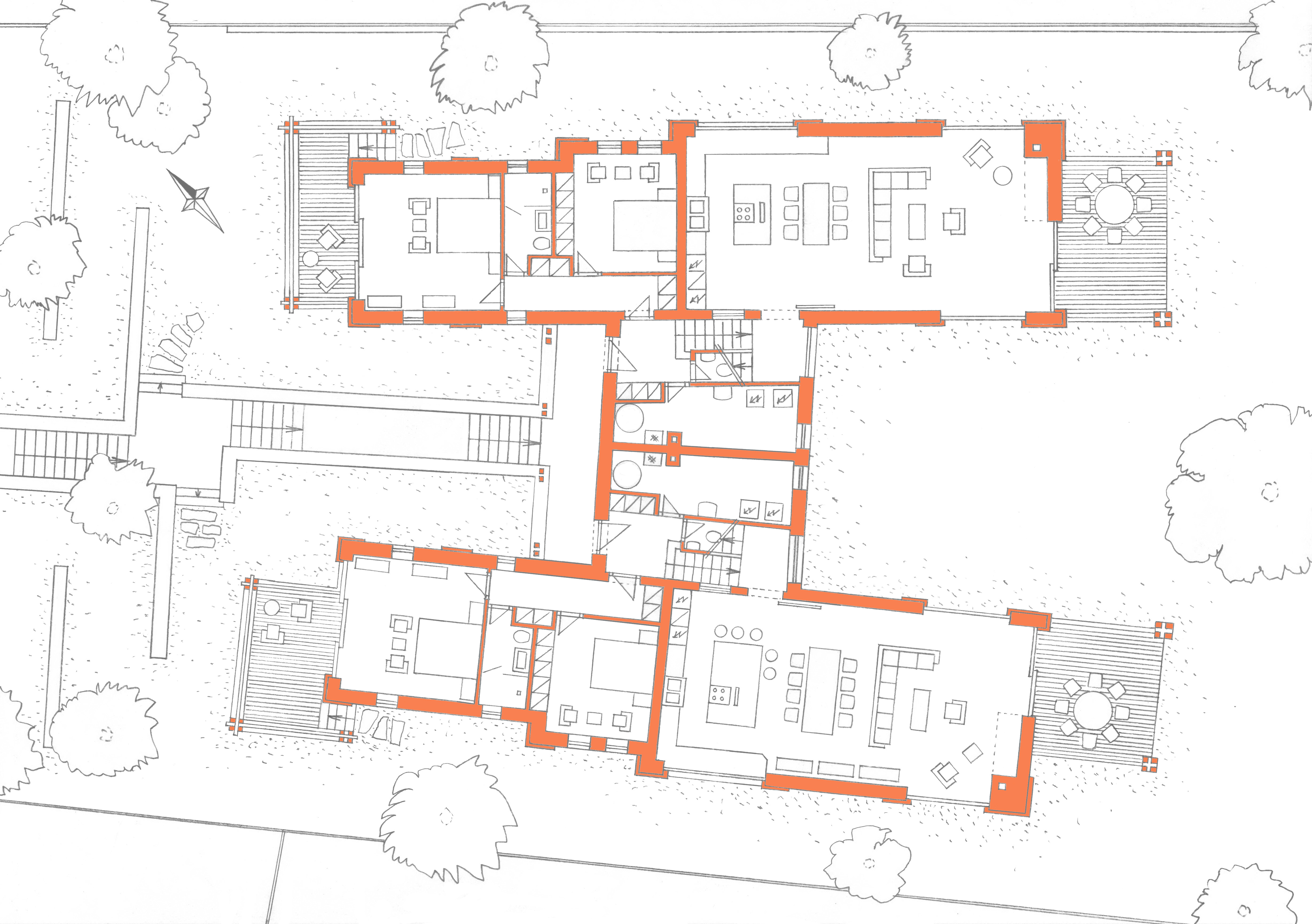
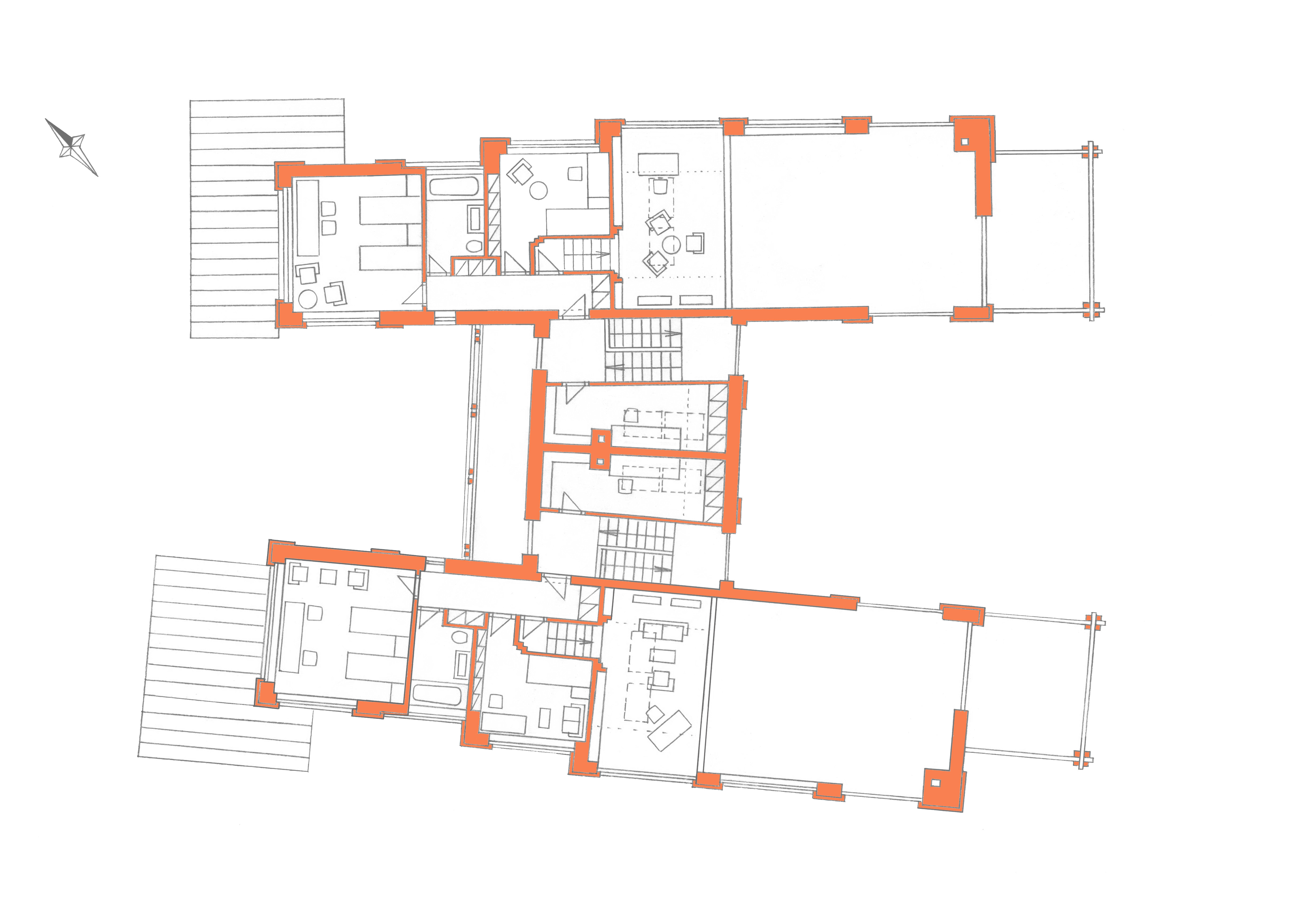
In the new suburban area of Veresegyház, a two-family apartment building designed on a steeply sloping vacant plot.

The building has ground floor + attic and is located on the upper part of the plot. The garages of the apartments are situated at street level, sunk below ground level, with an entrance gate.

The house is constructed with plastered walls, stained timber frames and metal doors and windows. The roof cladding is anthracite coloured tiles.

Fotó
Fotó
Felső szint alaprajza
Alsó szint alaprajza
Délnyugati homlokzat
Északnyugati homlokzat
Északkeleti homlokzat
Délkeleti homlokzat
Fotó
Távlati kép

All rights reserved © 2026