AXIS Architecture

HU
  • Home
  • Works
  • About
  • Contact

Post office, Környe


Public building Csaba Varga
Látványterv

location:                                 Környe

design:                                    2002

construction:                          -

lead architect:                      Varga Csaba

associate architects:           Gazdag Imre, Székely György

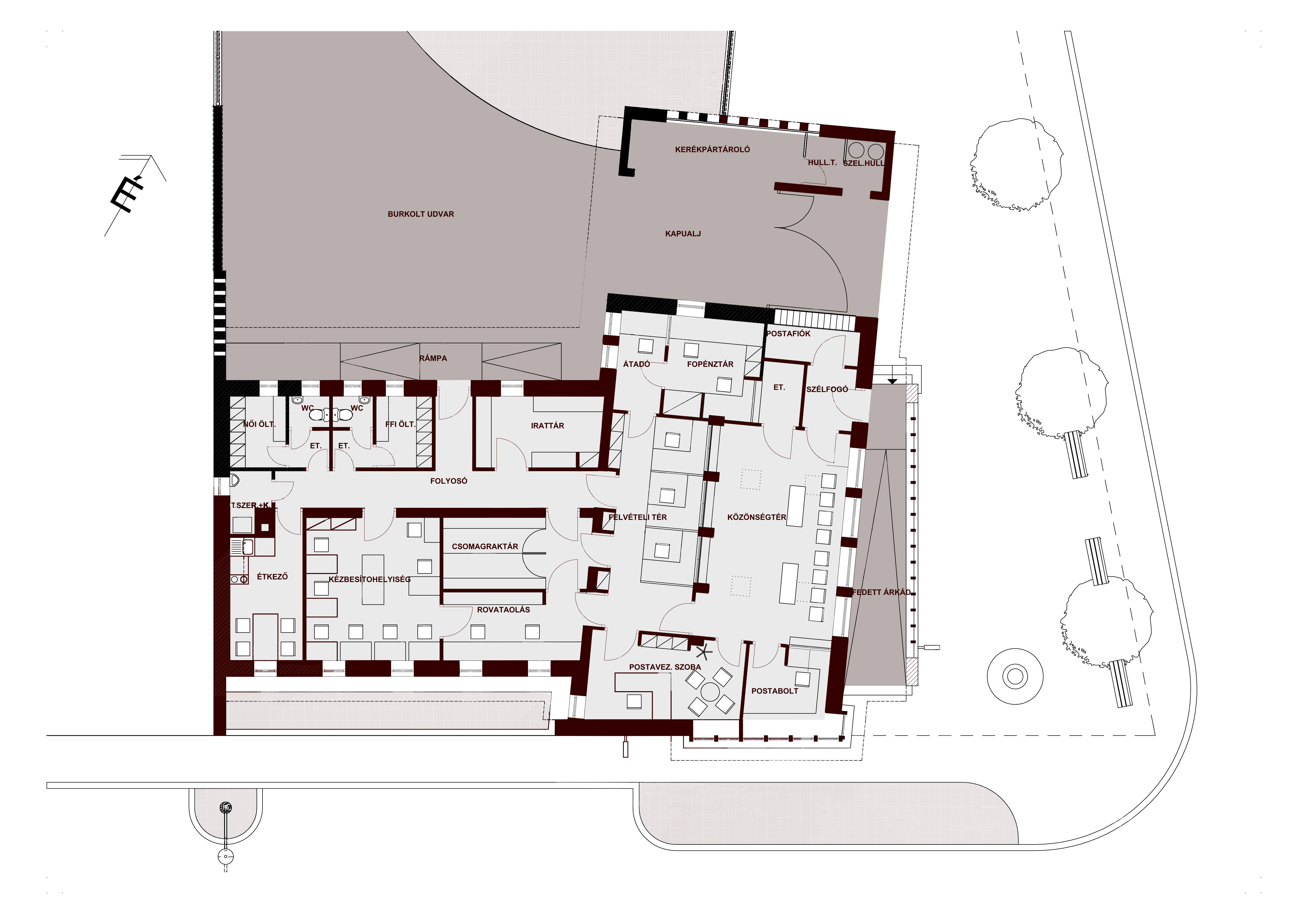
Alaprajz
Látványterv

The design was prepared for a national design tender of the Hungarian Post.

The corner plot is located in the central part of Környe, next to the mayor's office, the community centre and the school. The building was designed on this delicate but important junction so that by cutting the corner, a small square could be created with paving, a few trees and benches.

The building is a crossing of two simple gable-roofed blocks, which also define the boundary wall of the space that will be created. The design is a response to the city center’s development from the traditional farmhouse style into an unbroken row of buildings, as weel as a reference to the gable wall design typical of the settlement.

Látványterv
Keleti homlokzat
Déli homlokzat
Északi homlokzat
Nyugati homlokzat
A-A metszet
B-B metszet

All rights reserved © 2026