AXIS Architecture

HU
  • Home
  • Works
  • About
  • Contact

Family house - Dunakeszi, Szabadságliget


Dwelling house Csaba Varga
Fotó

location:                               Dunakeszi

design:                                  2001

construction:                       2001-2002

lead architect:                   Varga Csaba

associate architect:          Erhardt Gábor

structural:                             Mantuano Tamás

geobiology:                         Somlósi Lajos

photos:                                 Makláry Zoltán, Varga Csaba

Fotó

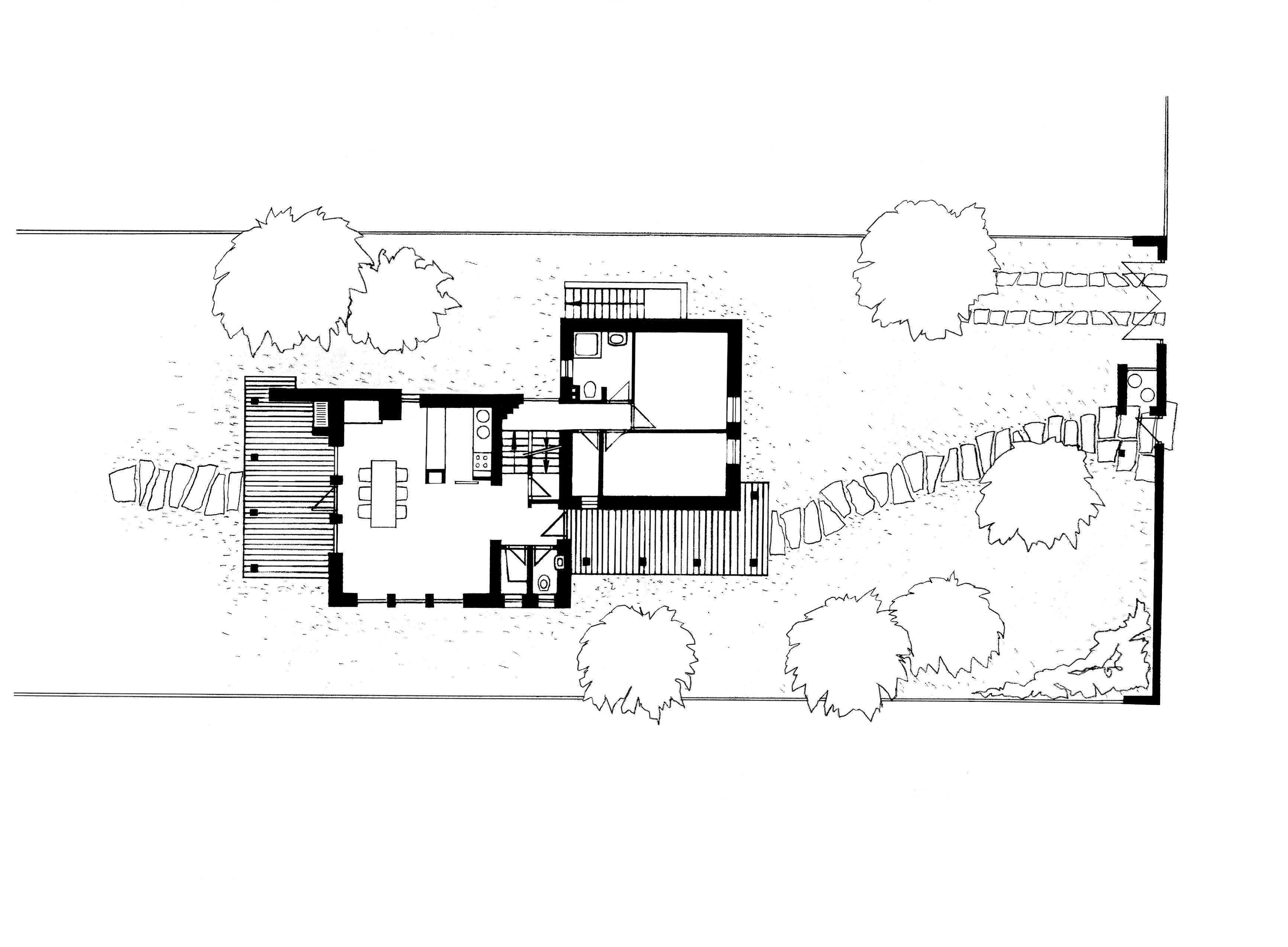
The small plots of land that were once weekend cottages have been converted into the residential area where the family house was built, by converting and extending an existing cottage. As the existing part of the building had a basement and was highly elevated from the ground (and we did not want to follow this in the new part), the house is split-level. Thus a new staircase was added at the hinge point of the building, to connect the old and new part.

The house is clad in masonry brick from Fertőszéplak, and the roof is covered with beaver-tail tiles.


Fotó
Fotó
Fotó
Fotó
Fotó
Fotó
Belső fotó
Távlati kép
Földszint alaprajz
Tetőtér alaprajz
Belső fotó
Belső fotó
Fotó
Eredeti épület fotója

All rights reserved © 2026