AXIS Architecture

HU
  • Home
  • Works
  • About
  • Contact

Family house – Dunakeszi, Révdűlő


Dwelling house Csaba Varga
Fotó

location:                           Dunakeszi

design:                              1996

cosntruction:                   1997-98

lead architect:                Varga Csaba

structural:                          Pongor László

mechanical eng.:           Fenyves Tamás

electrical:                         Tóth Zoltán

geodesy:                          Radványi Iván

soil mechanics:               Mitók Béla

photos:                             Varga Csaba

Fotó

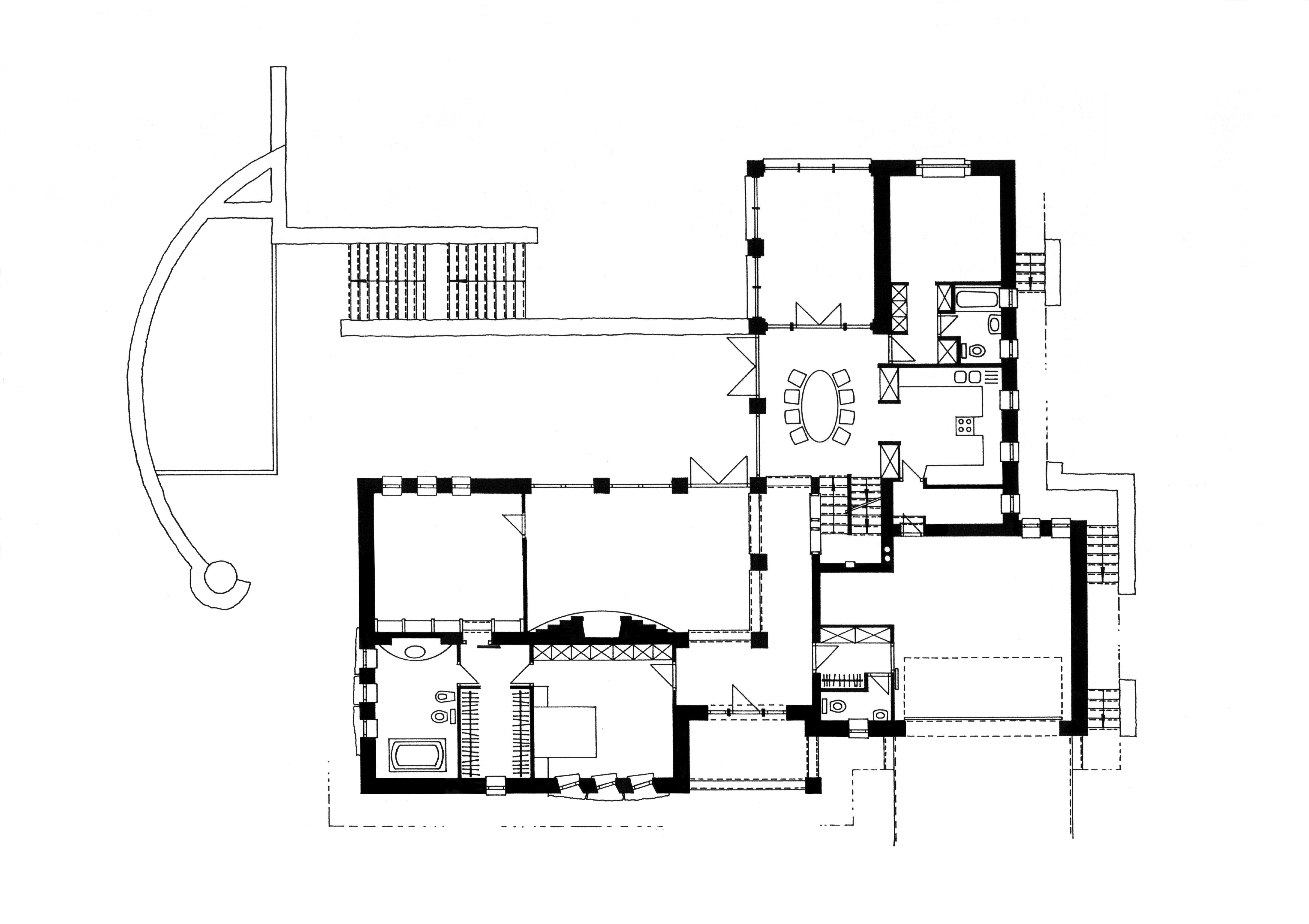
Detached house on a large plot in the Danube shoreside, with beautiful views of the Pilis mountains. Due to the steep slope, the street front of the house is one-storey, the other side facing the Danube bank is two-storey. The attic under the flat pitched roof is unbuilt. The house is clad in termite stone of Hidegkút and horizontally divided ashlar brick. The roof is tiled with a flat-pitched tile roof, complemented by red copper tinning. The main interior spaces of the house are also covered with ashlar.

Fotó
Fotó
Alaprajz
Fotó

All rights reserved © 2026