AXIS Architecture

HU
  • Home
  • Works
  • About
  • Contact

Family house - Budapest, Rákosszentmihály


Dwelling house Csaba Varga
Fotó

location:                                  Budapest, XVI. district

design:                                     2006

construction:                          2007 – 2008

lead architect:                      Varga Csaba

associate architect:             Füzes András

structural:                                Cséfalvay Gábor

mechanical engineer:         Fenyves Tamás

horiculture:                             Herczeg Ágnes

geobiology:                           Somlósi Lajos

photos:                                    Varga Csaba

Fotó
Fotó
Fotó

Detached house with ground floor + attic on a flat plot. Façade of rendered brick and stained timber cladding. Roof covered with natural tile.

The north facade facing the street is more closed, while the south opens onto the garden with large glass walls and terraces.

An outbuilding has also been constructed at the rear of the garden, which includes a covered grill area and a garden tool shed.

Fotó
Fotó
Fotó
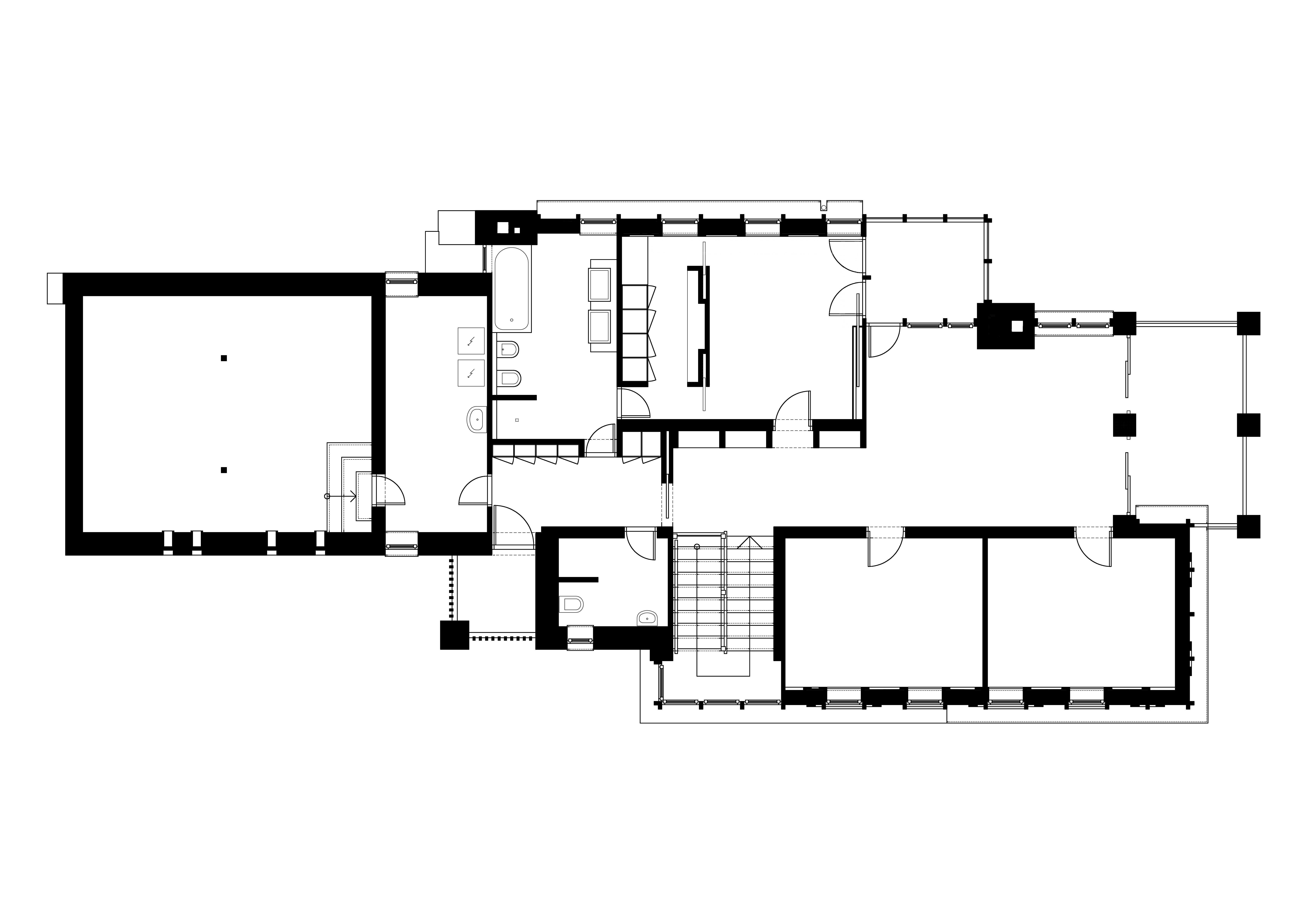
Földszint alaprajz
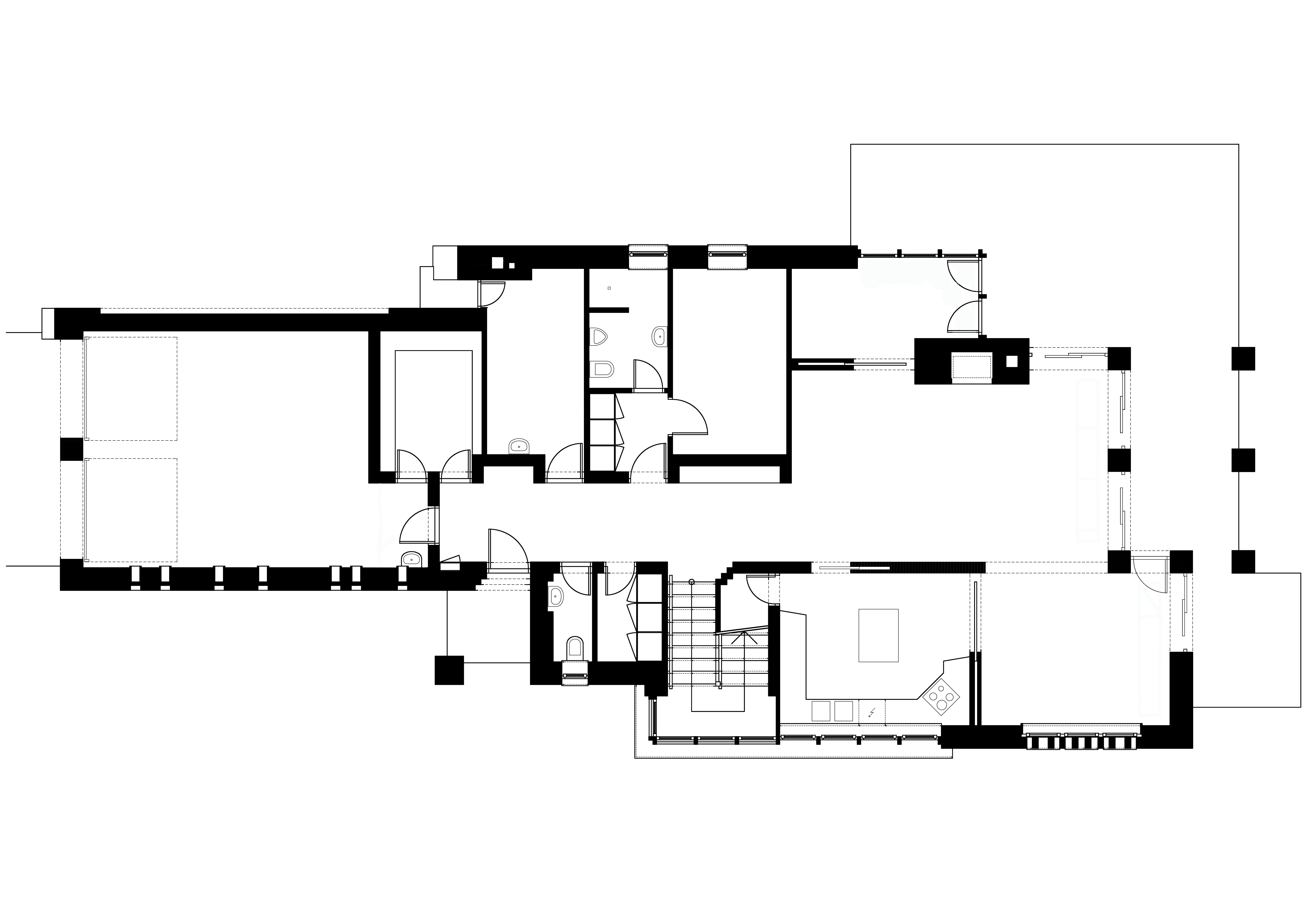
Tetőtér alaprajz
Metszet
Melléképület fotó
Melléképület fotó
Fotó
Fotó
Távlati kép

All rights reserved © 2026