AXIS Architecture

HU
  • Home
  • Works
  • About
  • Contact

Family day care and educational counselling, Nagymaros


Public building Csaba Varga
Fotó

location:                                  Nagymaros, Rákóczi u. 14.

design:                                     2005 - 2010

construction:                          2012 – 2013

lead architect:                      Varga Csaba

associates architect:            Füzes András, Vavrik Ferenc

structural:                                Mantuano Tamás

mechanical engineer:         Fenyves Tamás

electrical:                               Levek István

photos:                                    Varga Csaba

Fotó
Fotó

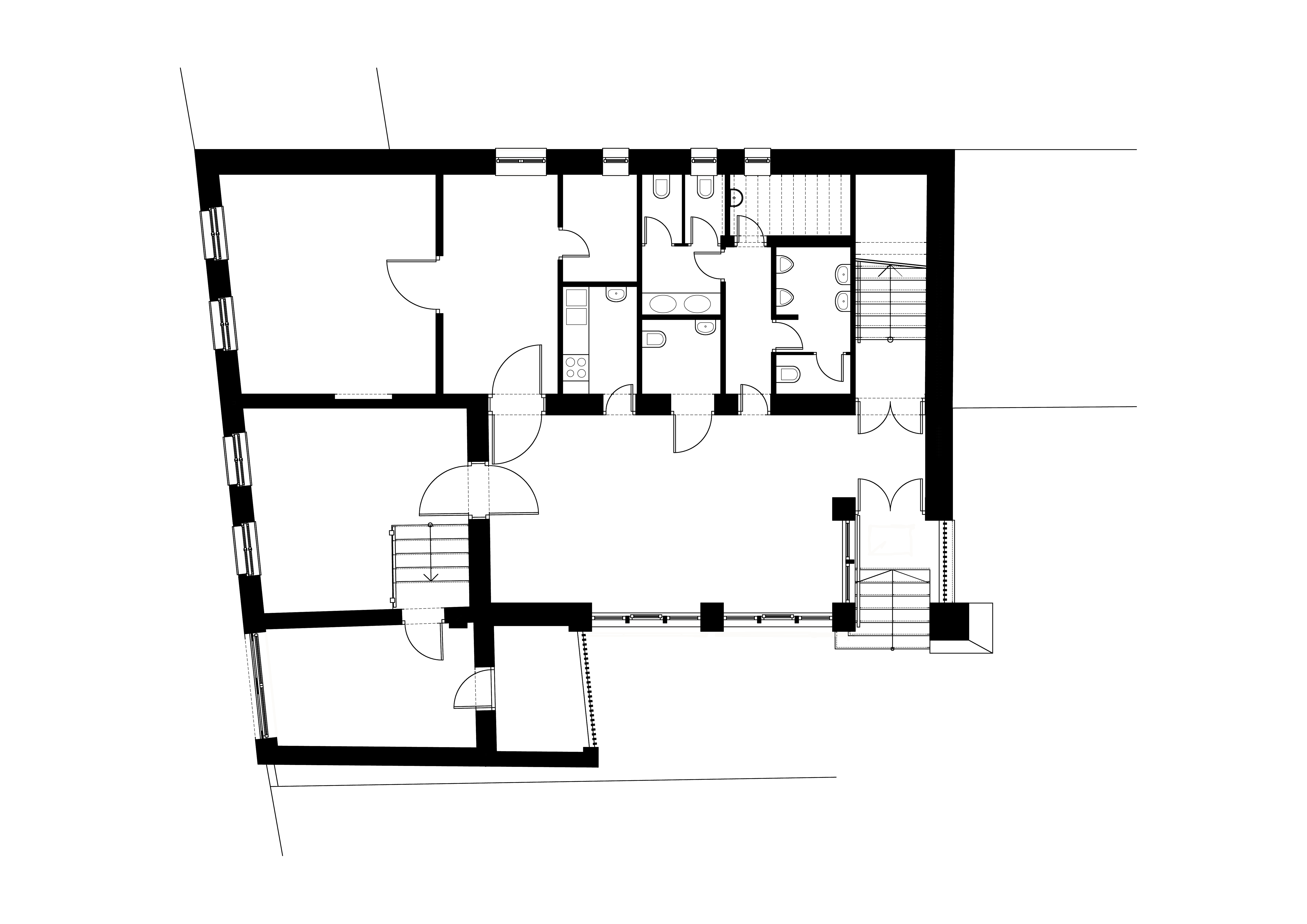
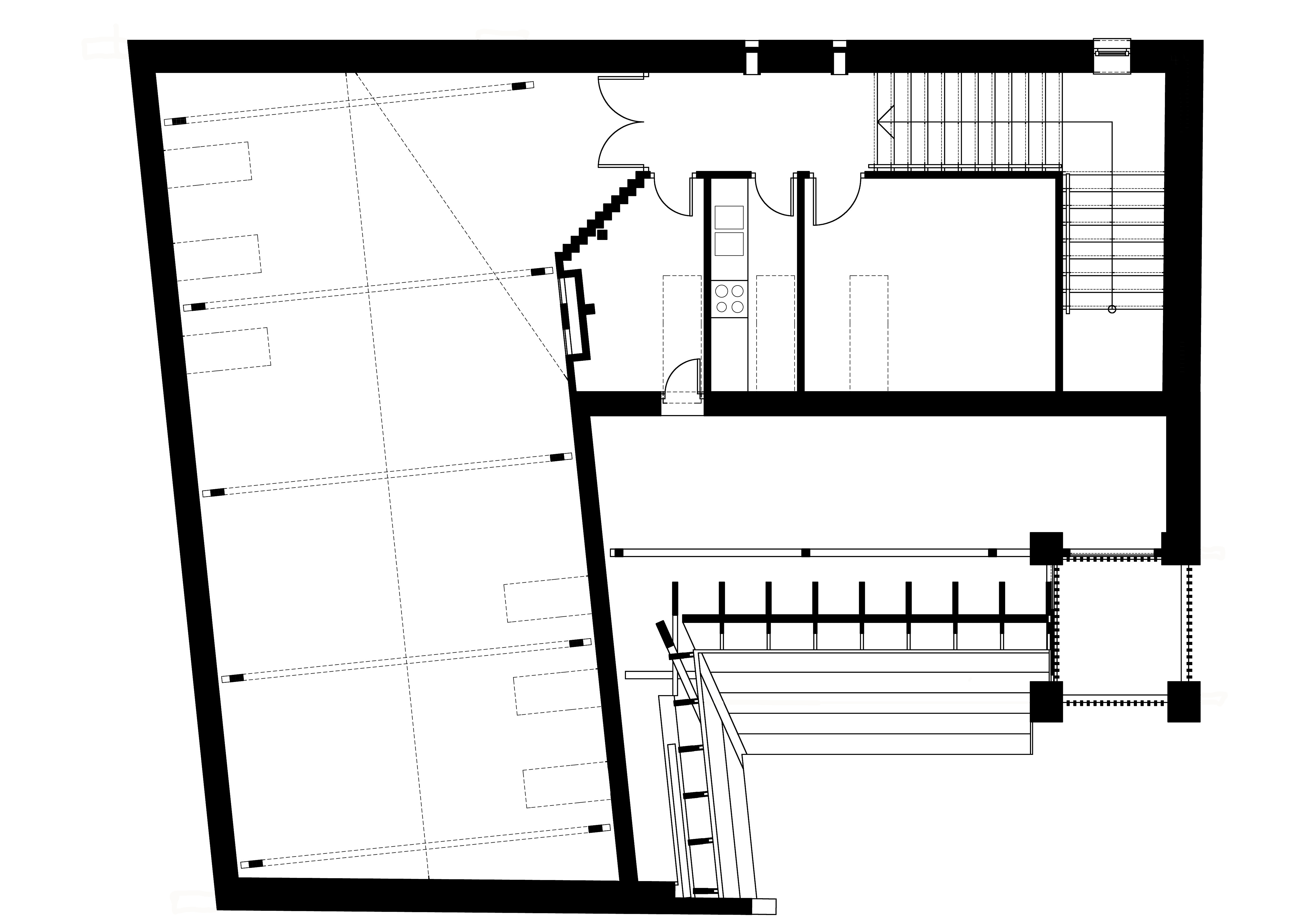
Extension and conversion of an existing house built in the first half of the 1900s. The lower floor of the building is used for educational counselling and the middle floor for a family day care centre. A large hall with service areas and an independent entrance is located in the attic, which can be used by the family day care centre and other NGOs.

The old parts are plastered, the new facades in the courtyard are covered with exposed brick. The roof is tiled.

Távlati kép
Fotó
Fotó
Fotó
Fotó
Metszet
Fotó
Alagsor alaprajz
Földszint alaprajz
Tetőtér alaprajz
Fotó
Fotó
Fotó
Fotó
Eredeti épület utcai fotója
Eredeti épület udvari fotója

All rights reserved © 2026