AXIS Architecture

HU
  • Home
  • Works
  • About
  • Contact

24-unit apartment complex – Budapest, Pasarét


Dwelling house Csaba Varga
Látványterv

location:                    Budapest, Pasarét

design:                       2004

construction:             -

architect:                   Varga Csaba

A residential development planned on a steeply sloping site, with 8 houses of 3 apartments. The houses are three storeys with 1-1 apartment per level. The basement level has garages built into the retaining walls. The façades are made of natural stone, raw brick, wood and raw concrete, with a roof of corked sheet metal.

Látványterv
Tetőtér alaprajz
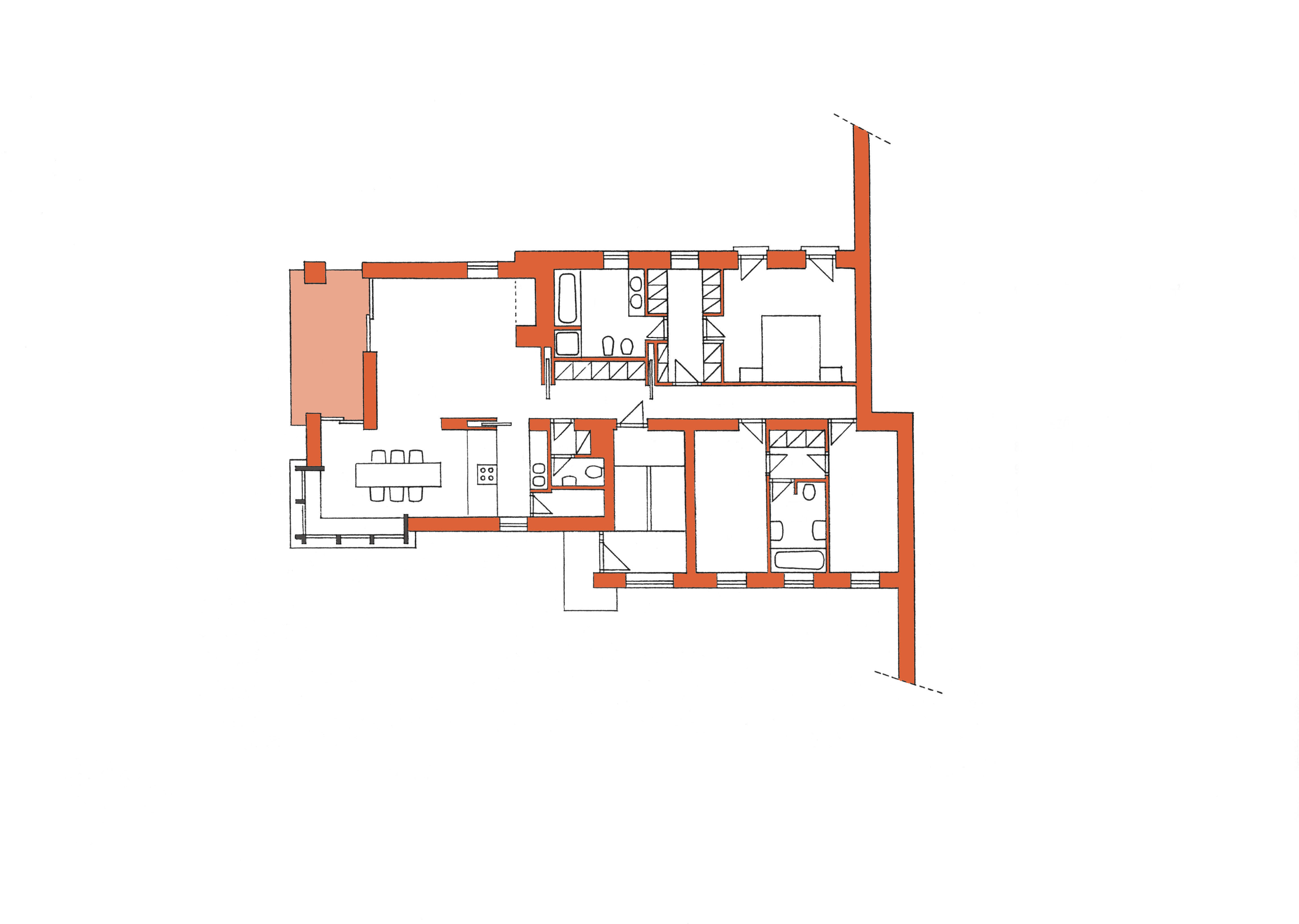
Emelet alaprajz
Látványterv
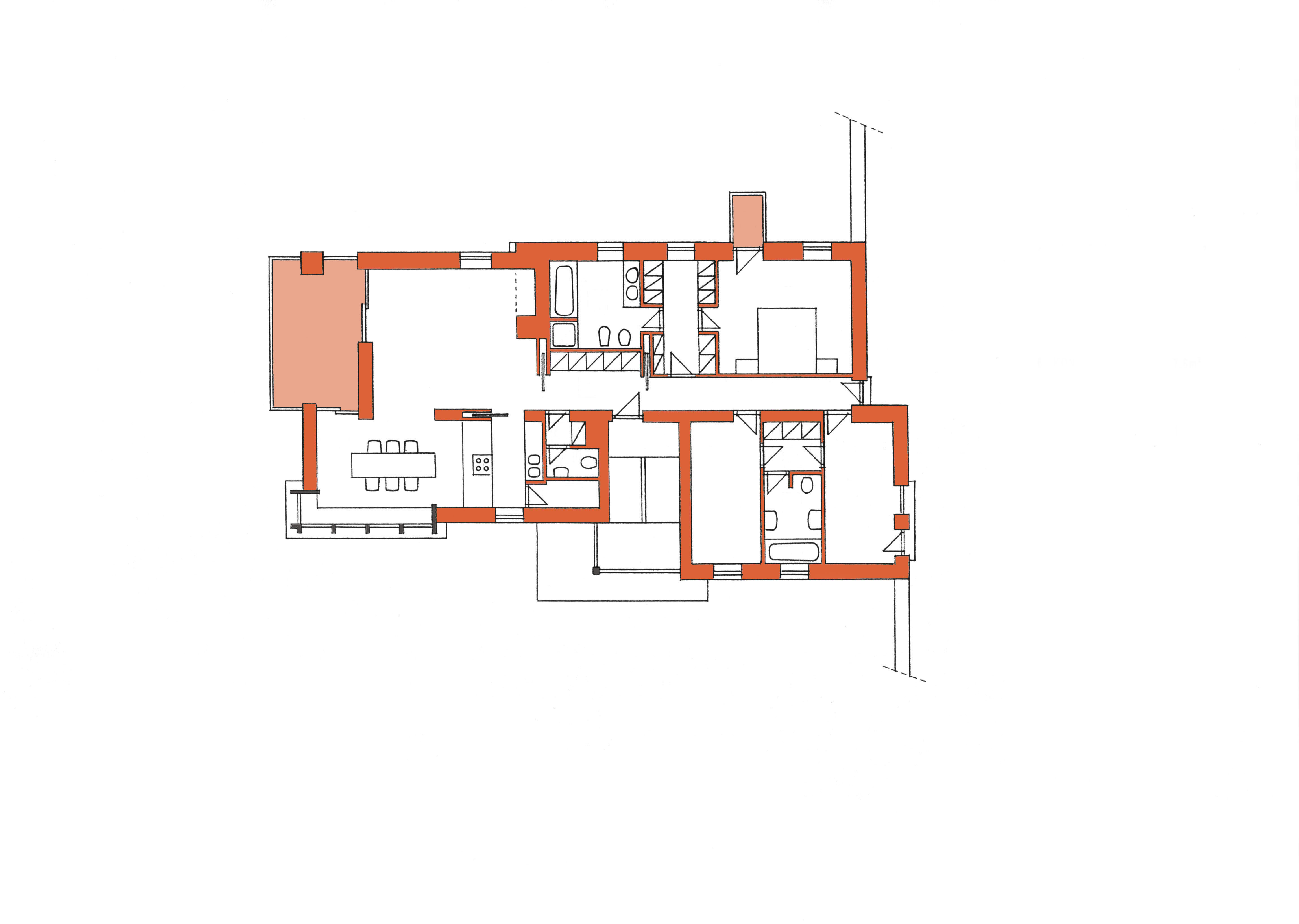
Földszint alaprajz
Pinceszinti alaprajz
Északnyugati homlokzat
Északkeleti homlokzat
Délkeleti homlokzat
Délnyugati homlokzat

All rights reserved © 2026