AXIS Építésziroda

EN
  • Kezdőlap
  • Munkák
  • Rólunk
  • Kapcsolat

Rendezvényház


Középület Salamin Ferenc

Helyszín:

Építés éve:

Építész:

Építész munkatárs:

Fotók:

Olaszliszka

2016

Salamin Ferenc

Salamin Pál

Dénes György

RENDEZVÉNYHÁZ


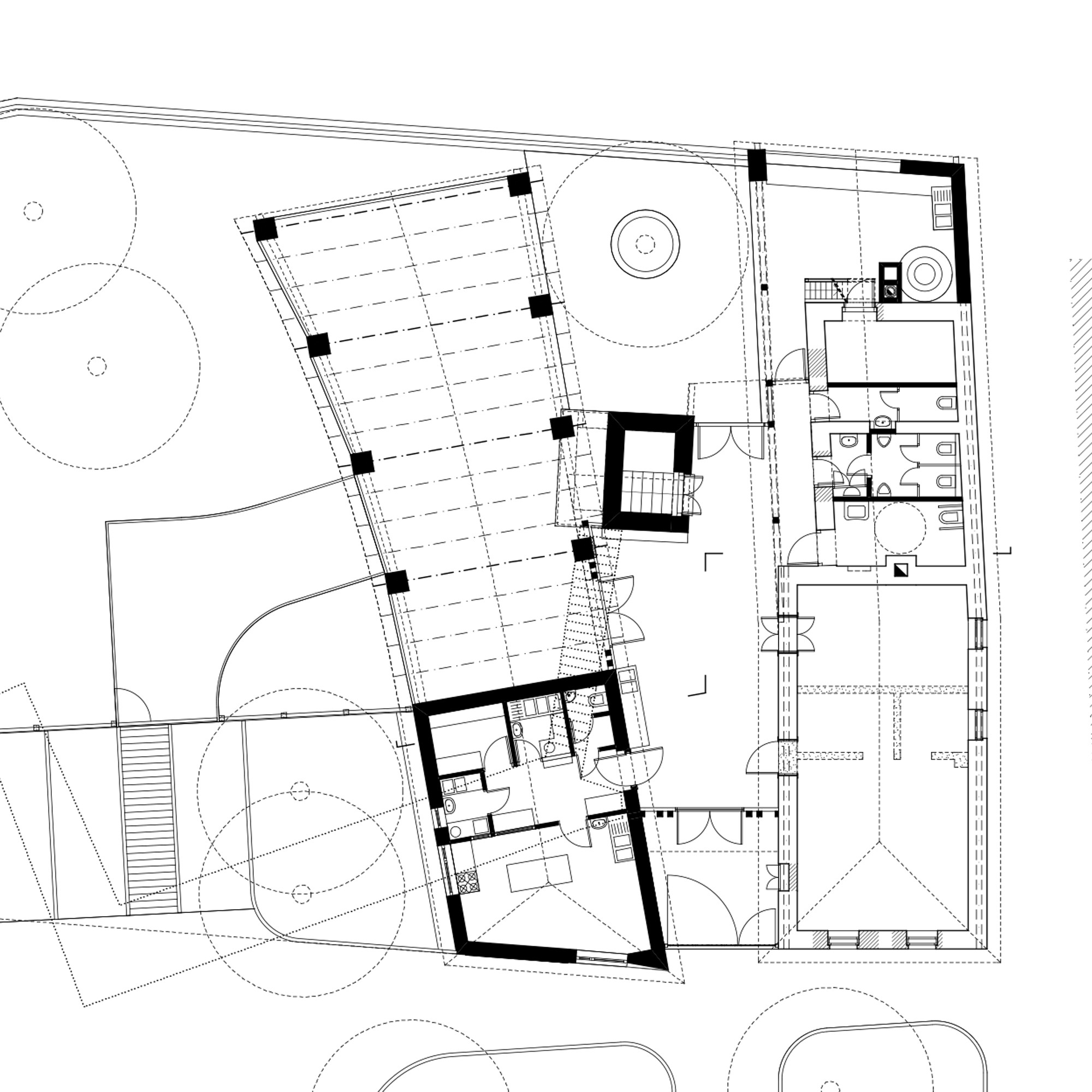
A település főterén áll Olaszliszka gótikus műemlék temploma.

A mellette készült, rendezvényekre -pihenőháznak, borkóstolásra, esküvőkre - használt épület egy régi falusi házat, egy új konyha és terasz épületrészt, továbbá a két épület közötti udvar lefedésével létrejött előteret foglalja magába.

A régi hosszúház közösségi teremként szolgál, mögötte fedett szabadtéri sütögető van. A vele párhuzamos, és a szokásos nyárikonyha helyén álló új épület főzőkonyhát rejt, míg ennek egyedien formált hátsó része fedett közösségi terasszá alakult.


Ez a lábonálló pajta ívesen ráfordul a templomra, benne tartózkodva az ember egyszerre érzi a műemlék emelkedett szellemét és a Bodrogra rálátás végtelenbe tárulkozását is.


A két épület között ül a lefedett udvar (régi neve „élet”), amely előtér és kávézó is egyben, és amely helyet ad a korábbi borospince kőfalazatú lejáratának is.


 Dns0200

Minden jog fenntartva © 2025