AXIS Építésziroda

EN
  • Kezdőlap
  • Munkák
  • Rólunk
  • Kapcsolat

Rendelő és lakás – Budapest, Istenhegy


Középület Varga Csaba
Fotó

cím:                                         Budapest XII. k., Nógrádi köz

tervezés:                                 2007 - 2008

építés:                                     2008 – 2009

építész vezető tervező:      Varga Csaba

építész munkatárs:              Vavrik Ferenc

statika:                                    Cséfalvay Gábor

gépészet:                               Fenyves Tamás

elektromos:                            Levek István

kertészet:                                Herczeg Ágnes

geodézia:                              Radványi Iván

Fotó

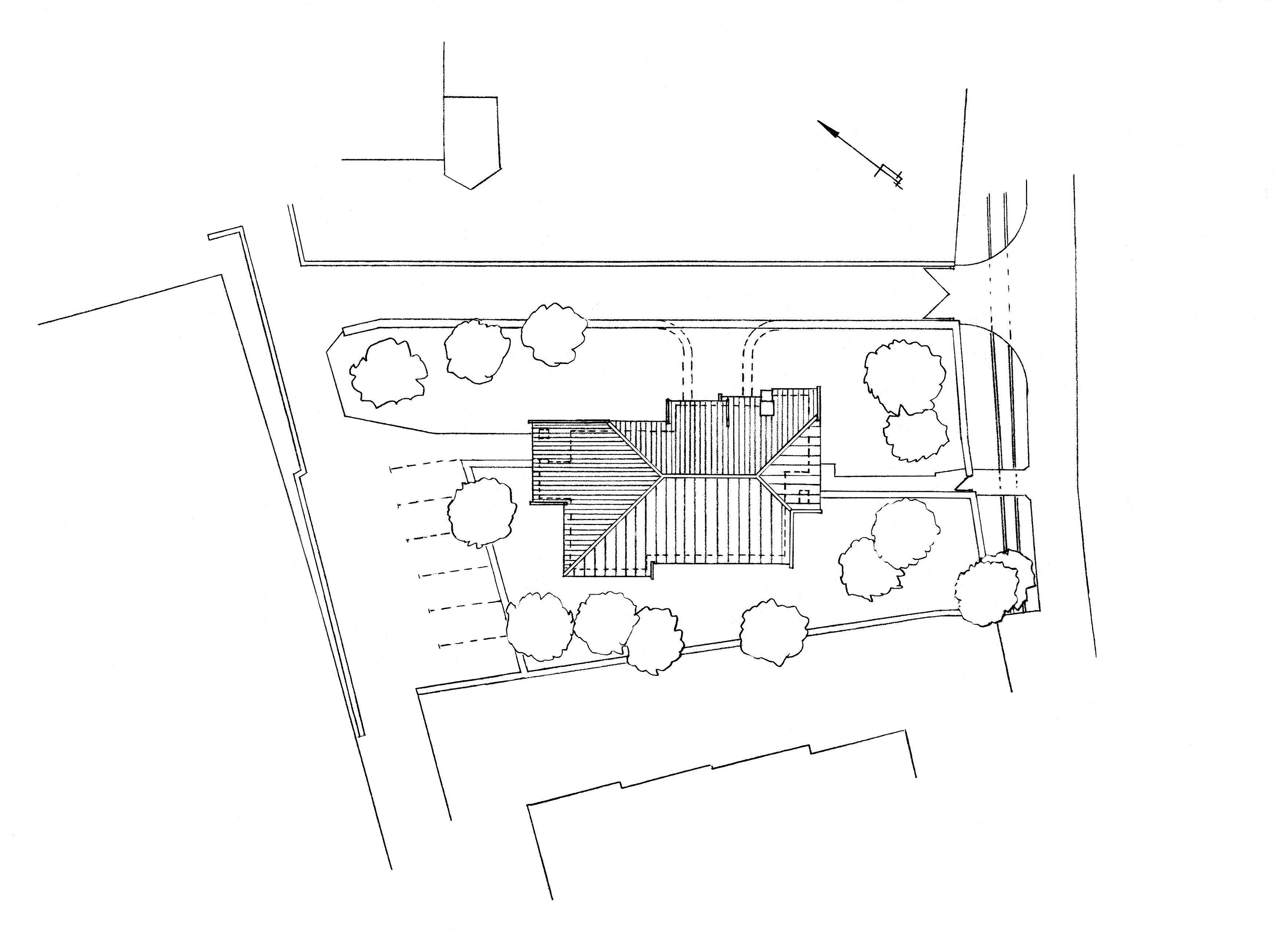
Szabadonálló, pince + földszint + tetőteres, ház lejtős telken, amely kapcsolatban van (szomszédos telek) a Kaáli Intézettel.

Az épületen durva vakolat, natúr cserépfedés és pácolt faszerkezetek jelennek meg.













Helyszínrajz
Fotó
Fotó
Fotó
Fotó
Fotó
Fotó
Pince alaprajz
Földszint alaprajz
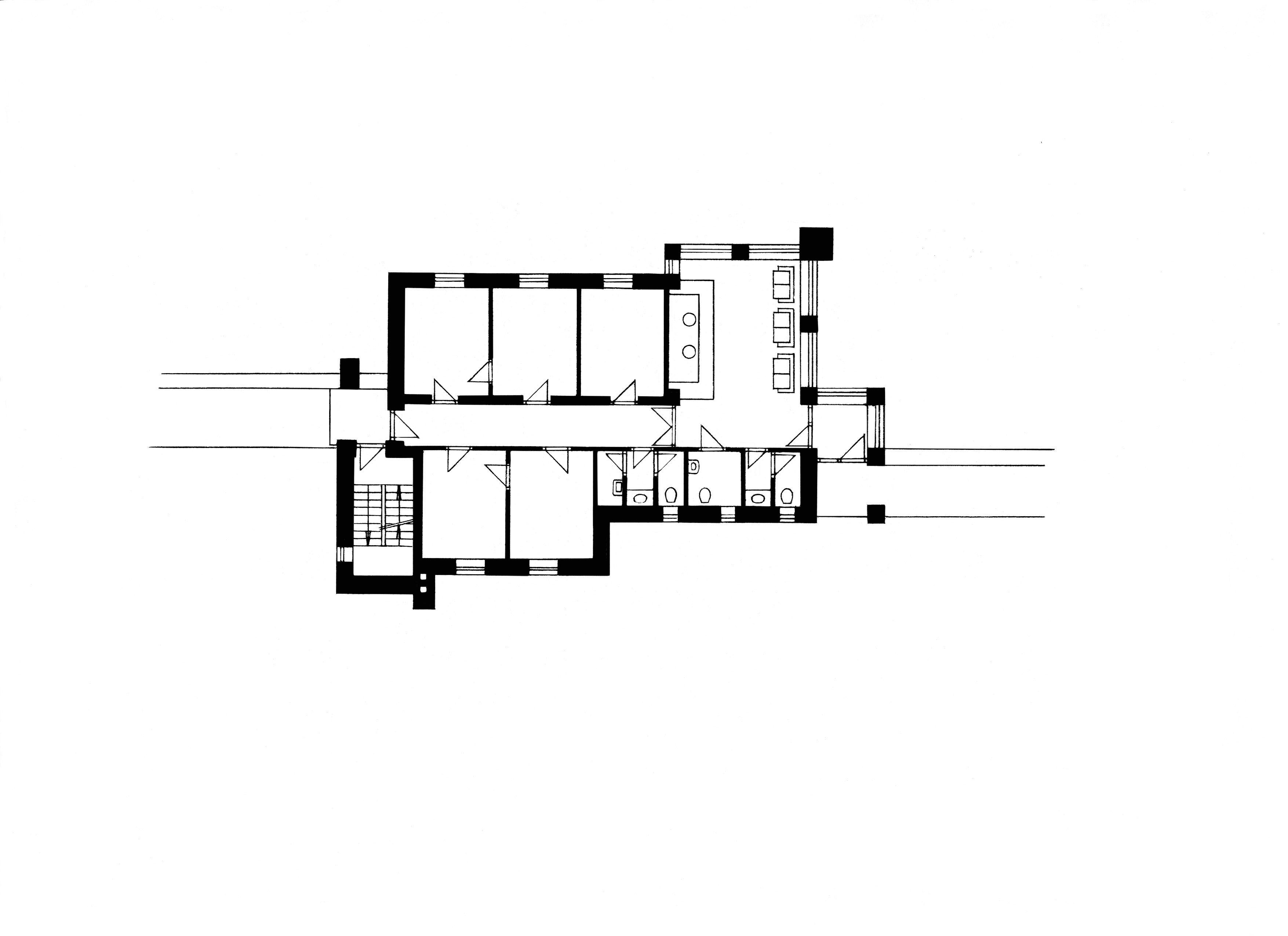
Tetőtér alaprajz
Fotó
Fotó
Északnyugati homlokzat
Északkeleti homlokzat
Délkeleti homlokzat
Délnyugati homlokzat
Fotó
Fotó
Fotó
Távlati kép
Távlati kép

Minden jog fenntartva © 2026