AXIS Építésziroda

EN
  • Kezdőlap
  • Munkák
  • Rólunk
  • Kapcsolat

Étterem és konyha, Nagymaros


Középület Varga Csaba
Fotó

cím:                                         Nagymaros, Magyar u. 24.

tervezés:                                 2010-2011

építés:                                     2013

építtető:                                 Nagymaros Város Önkormányzata

építész vezető tervező:       Varga Csaba

építész munkatárs:               Vavrik Ferenc

statika:                                    Mantuano Tamás

gépészet:                               Fenyves Tamás

elektromos:                            Levek István

konyhatechnológia:            Finta Gábor

költségvetés:                         Bognár László

kivitelező:                               Mirror Clean Kft.

fotók:                                      Varga Csaba

Északnyugati homlokzat

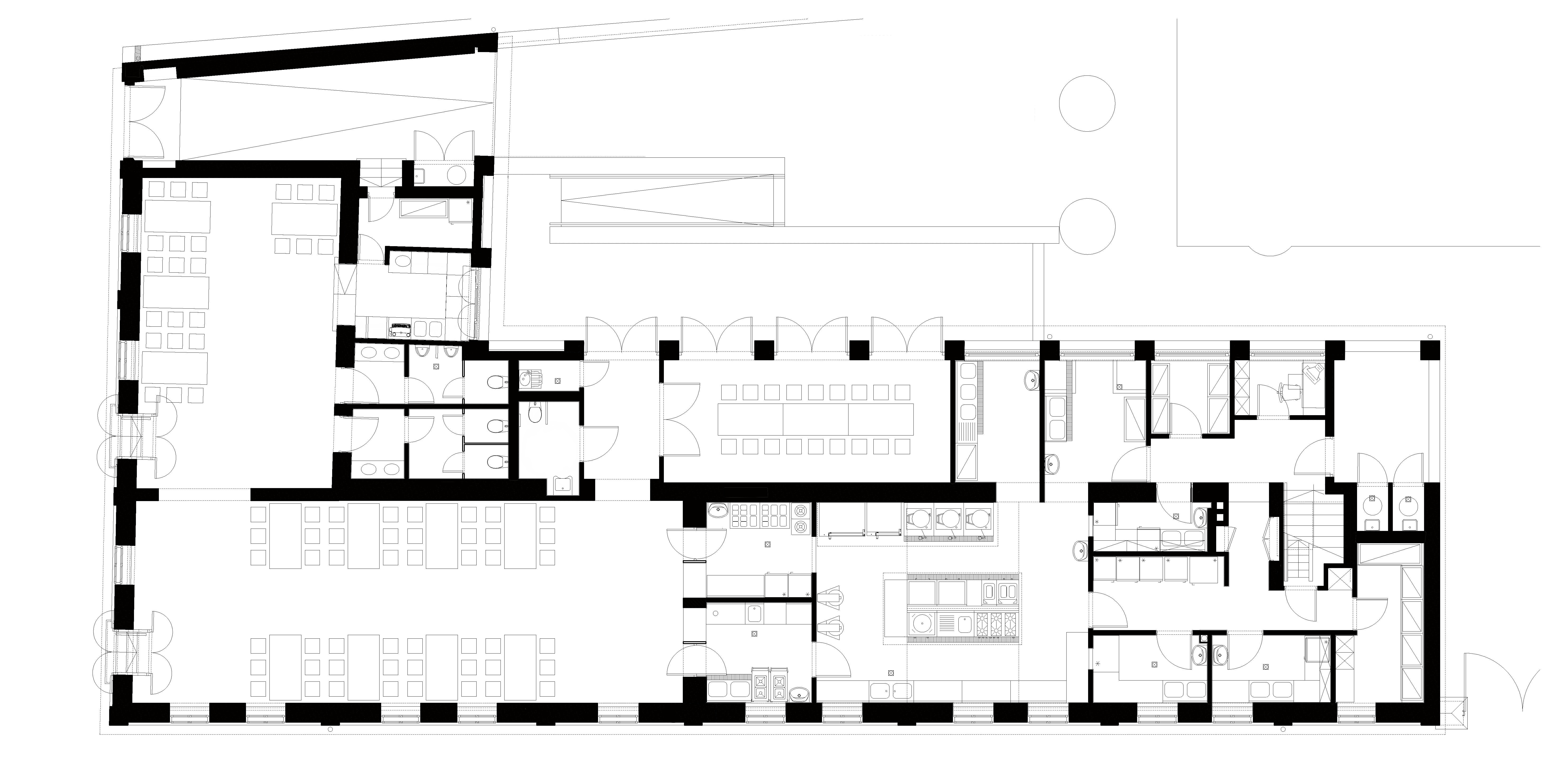
Egy helyi védelem alatt álló klasszicista, zártsorúan beépített sarokház átalakítása és felújítása. Az épület a közelmúltig vendéglátóhelyként működött. A házban a helyi diákok étkezését kiszolgáló 500 adagos konyha és étkező került kialakításra. Az általános iskola diákjainak étkeztetése mellett az intézmények dolgozóit is helyben kiszolgálja, míg az óvodákat és az öregek napközi otthonát ételkiszállítással (az ott meglévő melegítőkonyhák igénybevételével) látja el. A felsoroltak mellett az étterem a külső vendégek (Nagymarosiak és a városba látogatók) fogadására is alkalmas.

Az ingatlan udvara két részre osztható: az egyik az épület „L” alakú bezárásával határolható le, ahol kerthelyiség lett kialakítva. A hátsó udvarrész a termelői piac tere, amely terület új kerítéssel (téglapillérek közti nagy, kétszárnyú fakapuk) nyit a Millennium sor felé. Ehhez egy kiszolgáló raktárépület is épült.

Az épület két traktusból áll, az L alaprajz mindkét szárán. Az udvari kisebb fesztávú sáv eredetileg az épület nyitott tornáca volt, amelyet az idők folyamán, többszörösen beépítettek-átépítettek. Ezen belső traktust elbontottuk és helyére egy téglapillérek közötti faburkolatú fallal, illetve nyíló üvegfalakkal építettük be. Ez által rendeztük a korábbi átépítéseket és egyben visszaidéztük a tornácot.

A konyharész teljes átalakításon esett át, egy 500 adagos konyha előírásainak és igényének megfelelően. A konyhai személyzet szociális helyiségei, valamint a fűtéshelyiség a meglévő, boltozatos pincében lett kialakítva.

Fotó
Fotó
Fotó
Fotó
Fotó
Fotó
Fotó
Fotó
Fotó
Fotó
Fotó
Fotó
Alaprajz
Fotó
Fotó
Fotó
Fotó
Fotó
Fotó
Fotó
Fotó
Képeslap az épületről 1920-ból
Fotó
Eredeti épület utcai fotója
Eredeti épület udvari fotója

Minden jog fenntartva © 2026