AXIS Építésziroda

EN
  • Kezdőlap
  • Munkák
  • Rólunk
  • Kapcsolat

Electrolux bemutató- és oktatóterem 1., Budapest


Középület Salamin Miklós
002

tervezés éve:                  2013

kivitelezés éve:               2014

belsőépítész:                  Salamin Miklós

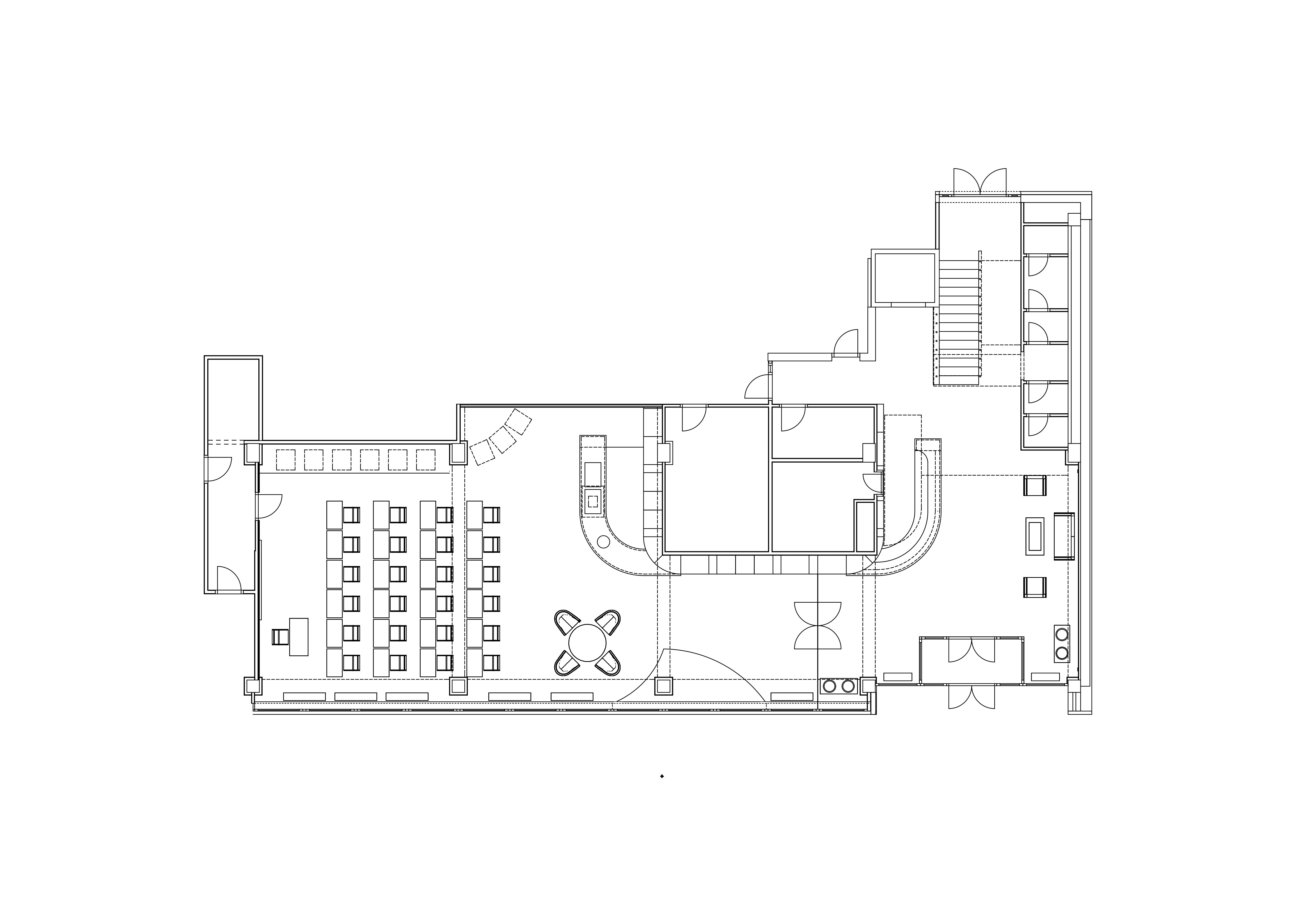
Alaprajz 2

Bemutató- és oktatóterem


         A tervezési feladat az Electrolux Hungary Kft. oktató és bemutatótermének kialakítása volt, az Erzsébet Királyné úti irodaépület földszintjén. A cég az új termékeivel kapcsolatban rendszeresen oktatási programokat tart munkatársai, illetve a viszonteladók és a boltvezetők számára. Az oktatási funkción kívül egy bemutatóteremre és egy mintakonyhára is szükség volt, ahol a cég kiemelt, Electrolux illetve AEG gyártmányú termékeit működés közben lehet megtekinteni és kipróbálni. A bemutató és oktatóteremmel együtt az irodaépület földszintjének recepció része is átalakításra került. A tervezési terület közepén meglévő irattár – raktár – portáspihenő alaprajzi tömb a tervezési területet bemutató-oktatóteremre illetve előcsarnokra osztja. Ez, az építészeti térbe beleharapó tömeg magas fényű, polírozott felületet kapott. A két funkciót burkolatváltás és egy, Electrolux emblémával díszített üvegfal választja el.

008
001
020
022
010
013
011
017
016
006
018

Minden jog fenntartva © 2026