AXIS Architecture

HU
  • Home
  • Works
  • About
  • Contact

Széchenyi restaurant and boat house, Göd


Public building Miklós Salamin
Image 03

design year:                    2024

architect:                        Miklós Salamin

architectural team:       Csongor Szendery 

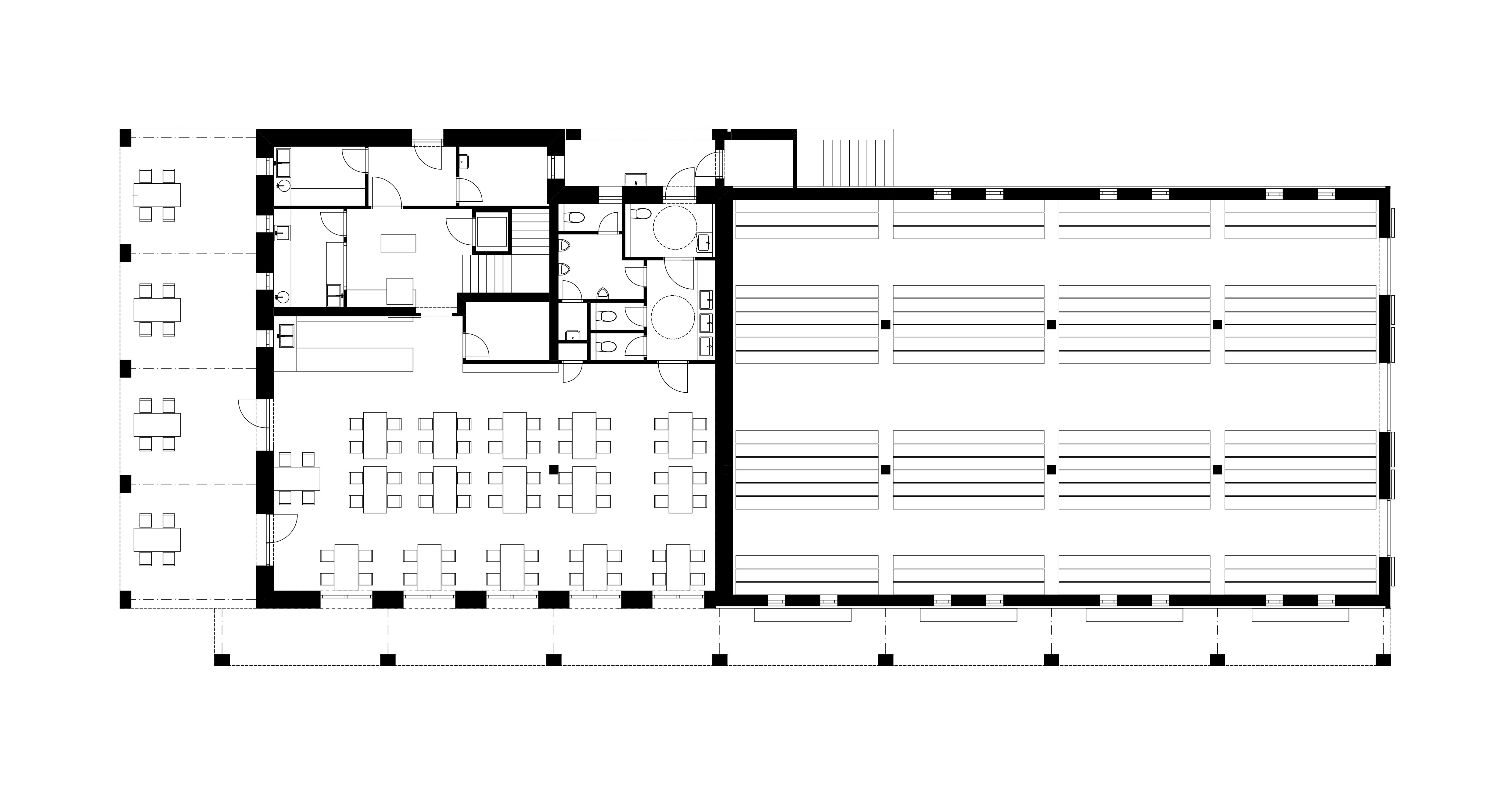
Fszt
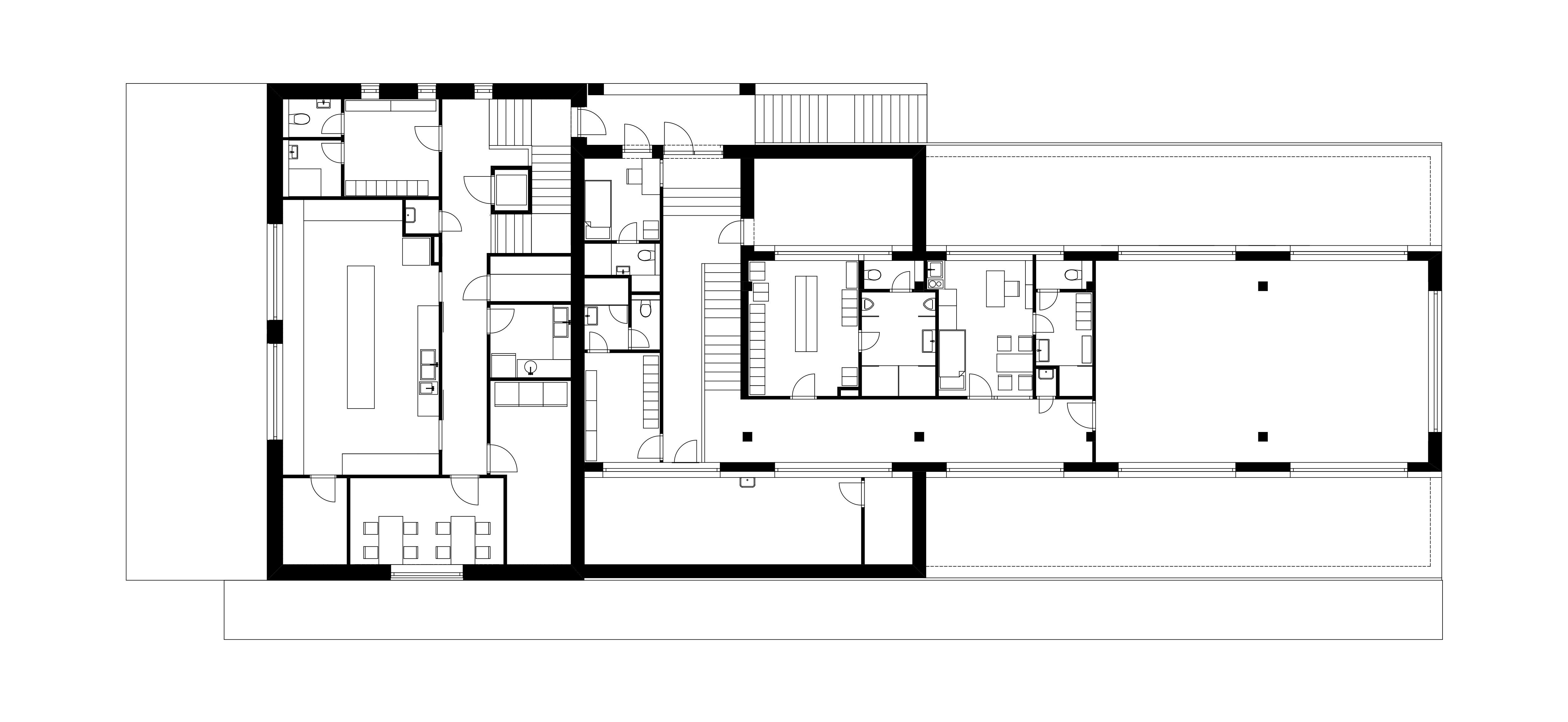
Emelet 2

Construction history


        Between the two world wars, the Alsógödi Beach Restaurant was an important community space for Göd and the local aquatic life. The boat house built next to it ensured the storage of boats for the sports life in Alsógöd. The building of the restaurant and boathouse was a gabled mass parallel to the Danube, with smaller building masses perpendicular to the river. After the demolition of the boathouse, only the mass of the inn building, which was rebuilt and supplemented several times, perpendicular to the river, remained. The existing inn building has undergone several expansions, its original appearance can only be recognized in traces.

98291315 3040221899371551 1448607699171278848 O
Alsogod Duna Part 134 213281835 Bak
God Godi Duna Strand

Boathouse and restaurant


        The symmetrical mass design of the planned inn building with a gabled roof parallel to the Danube recalls the mass of the old boat house, which has since been demolished. In the boat storage, the boat storage divided into three parts was located on the ground floor, the changing rooms and the gym were placed on the first floor.

               The pitched mass of the inn building is perpendicular to the main building, which is the same as the original layout of the existing old inn. In the inn building, the consumer area was placed on the ground floor, and the kitchen was placed on the first floor.

Image 24
Image 07
Image 22
Image 21
Image 25
Image 17
Image 18

All rights reserved © 2026