AXIS Architecture

HU
  • Home
  • Works
  • About
  • Contact

Renovation and expansion of country house, Fót


Monument Miklós Salamin
05

design year:                                   2022

architect:                                       Miklós Salamin

architectural team:                      Szendery Csongor

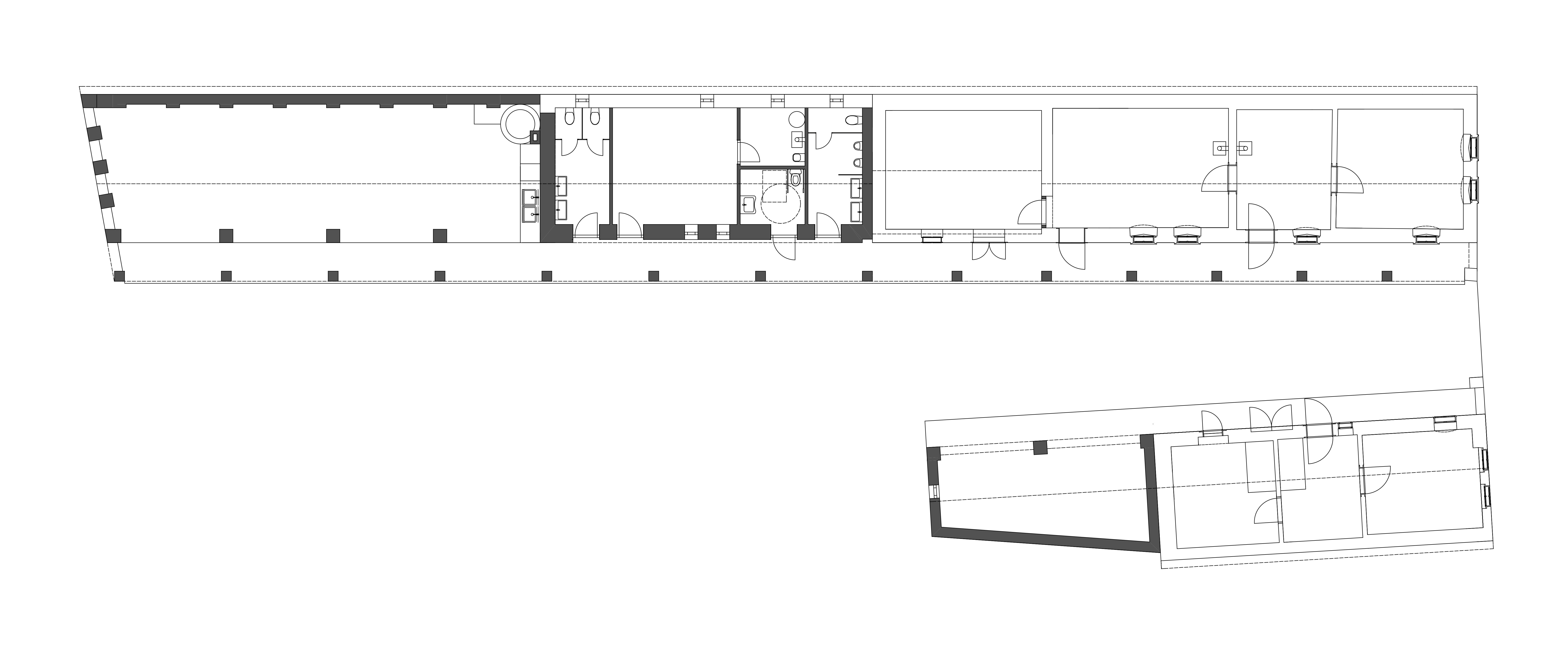
Alaprajz

plan

Construction history


Petőfi Street was an undeveloped area in the 1780s. The extensive vineyards surrounding the settlement are clearly visible on the First Military Survey. The II. Petőfi utca can already be clearly identified on a military survey, and plot No. 6 Petőfi Sándor u can also be identified as a built-up plot. It can be identified as the last house of the street that opens up with jewels. The exact land divisions can only be seen on the cadastral map made in 1883. The lot known today consisted of two lots at the time, 516 and 517. At that time, only the place of the "big house" was built on, the small house opposite it was probably not yet standing. The design of the two buildings visible today is one of the XX. it was created as a result of a reconstruction that took place at the beginning of the century. This explains the uniform appearance and similar doors and windows of the "big house" and "small house". It is also not documented, but the XX. in the second half of the century (approx. 1975-1990) there was also a more serious reconstruction. At that time, central heating was built in accordance with the needs of the time, the barn was built at the latest, and the back room could then be walled off for the public - toilet - bathroom rooms. The cottage could also be modernized at the same time. Here, too, they switched to gas-fired central heating, and a kitchen and a bathroom and toilet were created from the back room. The former kitchen became a dining room. It was probably then that the chimneys were dismantled and the roof adjusted. The farm building at the end of the barn was also demolished or collapsed at this time, which was clearly identifiable as a building with a gable roof on the 1970 aerial photograph.

When planning began, two separate buildings stood opposite each other on the plot. The main building consisted of two masses with gable roofs, of which the street side is higher and the back part is lower. The small building opposite it has a single-story, gabled roof design. Both buildings have a gable design, they were located on the line of the street, the gates opened between the facades of the two buildings.

Dsc 6736ff
Dsc 7812ff
Dsc 7819 Ff

Renovation and expansion


During the renovation, the original floor plan was restored in the old buildings. The aim of the renovation of the existing building parts is to reconstruct and repair the original rooms, spatial connections and structural designs as much as possible, and if necessary, replace them in the same way as the original structures.

The previously demolished commercial building will be rebuilt. Washrooms connected to the country house and a storage room were placed here. Behind the reconstructed service building part, a coverd-open event space has been created, where programs and events related to the landscape house (handicrafts, education, forest school) will be held. The planned additions follow the massing of the existing building. The small building was extended towards the back garden, where an outdoor exhibition space was placed. The new parts of the building are made with traditional building structures, masonry structures, traditional roof chair design and wooden ceiling, the addition is indicated by the different use of materials – the visible brick structure.

03
1922 01
1922 02
06
01
04
09
02
08

All rights reserved © 2026