AXIS Architecture

HU
  • Home
  • Works
  • About
  • Contact

Primary school, Nagykáta


Public building Miklós Salamin
10

design year:                      2025

architect:                          Miklós Salamin

architectural team:         Csongor Szendery 

Architectural competition


        In 2024, a national open design competition was announced for the design of the Nagykáta elementary school, and we won the competition with our entry.

14
15
16

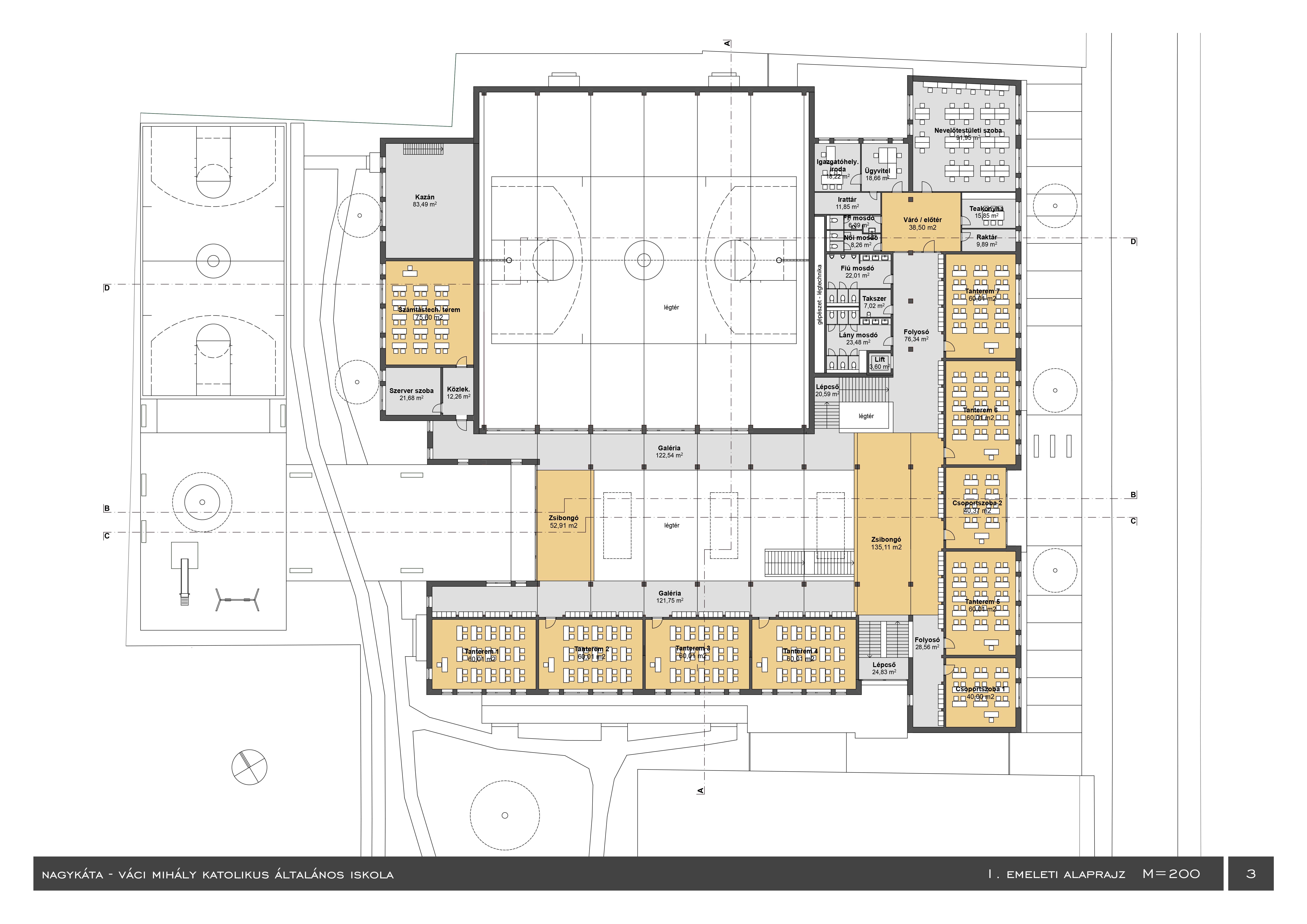
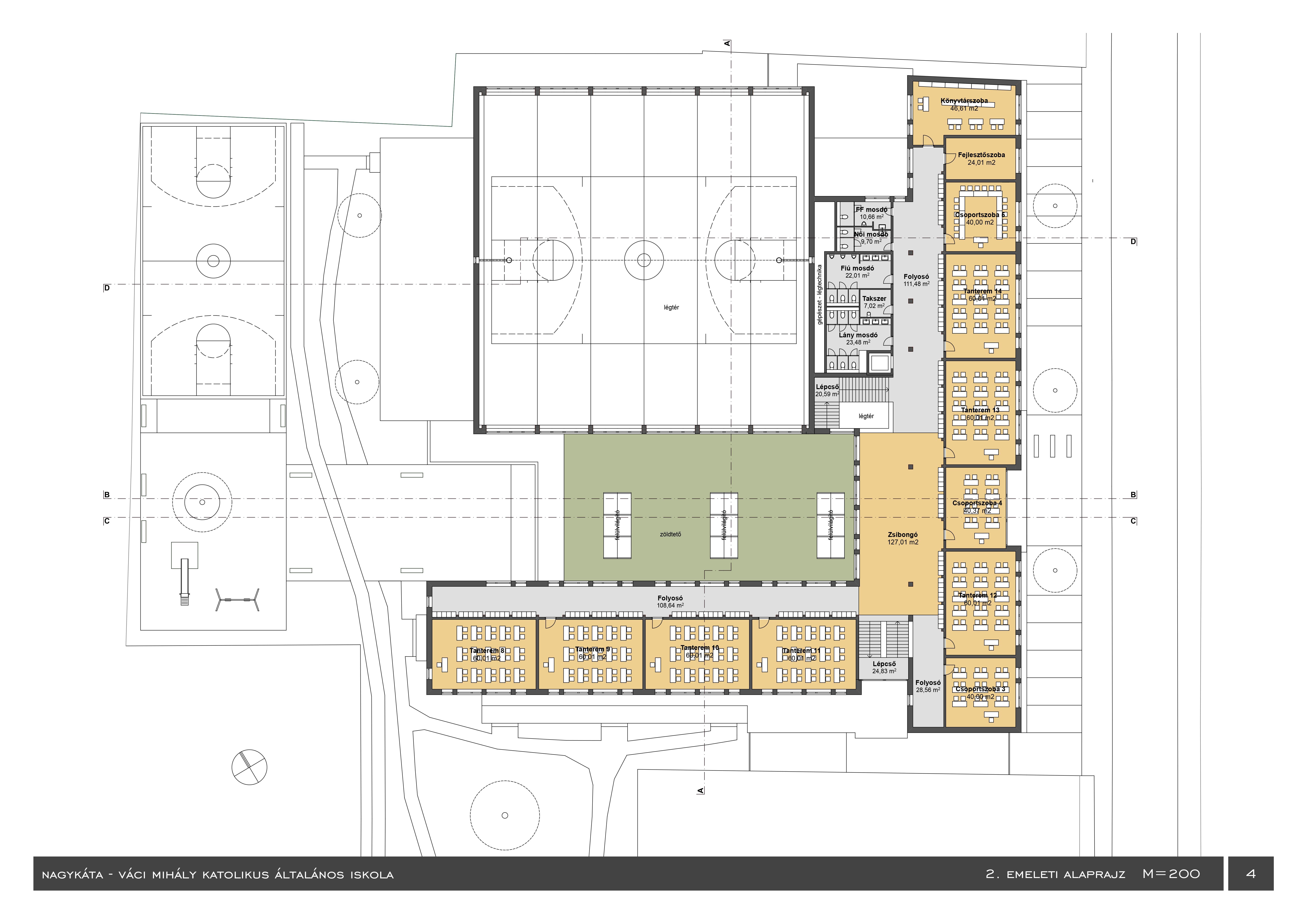
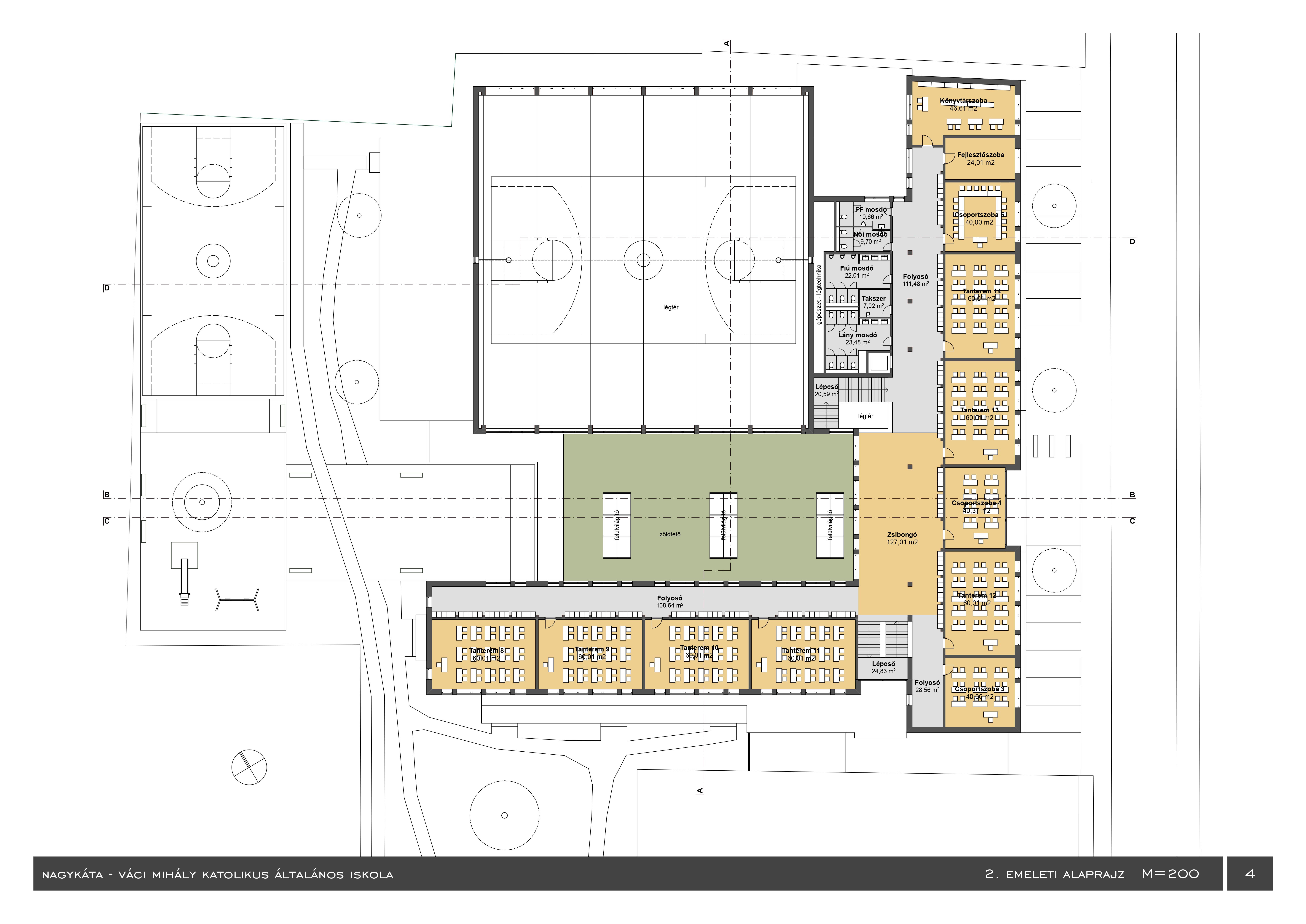
Floor plan


        We created green areas between the street-front parking spaces and on both sides of the entrance, aiming to relieve the rigidity of the solid urban surface in the city center. We reach the garden/schoolyard by walking through the building's axis, through the auditorium. We created a quieter playground next to the southwest wing of the building, and the cafeteria terrace also opens here. The barrier-free parking lot was located close to the entrance. The barrier-free restroom is close to the entrance, there is an elevator in the building, and all rooms are barrier-free.

              The gym was located on the NE edge of the site. The two classroom wings were located on the SE side of the site, facing the street, and the other wing was located on the SW side of the site. A two-story, gallery-like auditorium was created between the SW wing of the building and the gym, which is connected to the garden by a glass wall, and its lighting is provided by three skylights next to the glass wall. The planned auditorium serves as a hub for children during breaks between classes, as well as a venue for school events, and as a foyer for the gymnasium as an event venue. The restaurant is connected to the other longitudinal side of the auditorium, which also has its own terrace facing the playground. The restaurant can be connected to the auditorium with a sliding glass wall if necessary. The classrooms are located on the two upper floors, facing SE and SW. Only the dance hall and the computer science classroom are located on the NW side, which have an advantage in facing north.

04
02
09

Structure


        The roof structure of the gymnasium is made of prestressed glued timber main beams, so-called Polonceau beams. The advantage of the prestressing is the material saving and easier transportability, e.g. the roof structure of the Nyugati Railway Station was made with this solution (although the latter is of course a steel roof, but the principle is similar). The roof covering of the building is traditional ceramic tiles, which, with both its material and roof shape, fits in with the city centre of Nagykáta and the historic environment (the Keglevich Castle). The facade material of the building is natural-coloured ceramic bricks, which shows a connection with the Nagykáta brick production that used to be carried out in Nagykáta.

06
08
05

03
12
22
11
28
26
24

All rights reserved © 2026