AXIS Architecture

HU
  • Home
  • Works
  • About
  • Contact

Nursery, type plan


Public building Miklós Salamin
714

design year:                    2022

architect:                        Miklós Salamin

architectural team:       Dorottya Salamin, Csongor Szendery

Design competition


        In 2019, a national tender for nursery construction ideas was announced, in which we won a top prize with our entry.

711
712
716

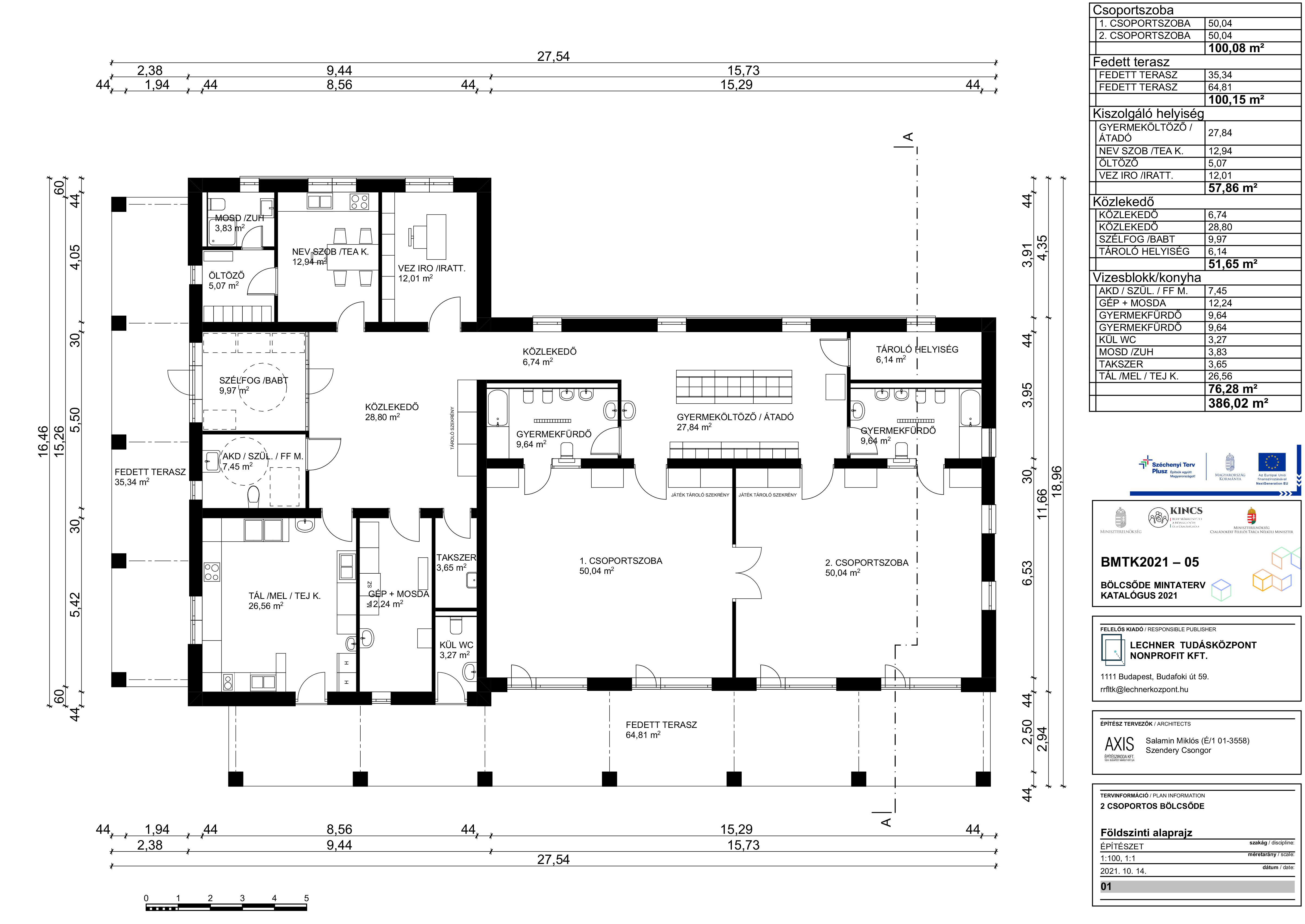
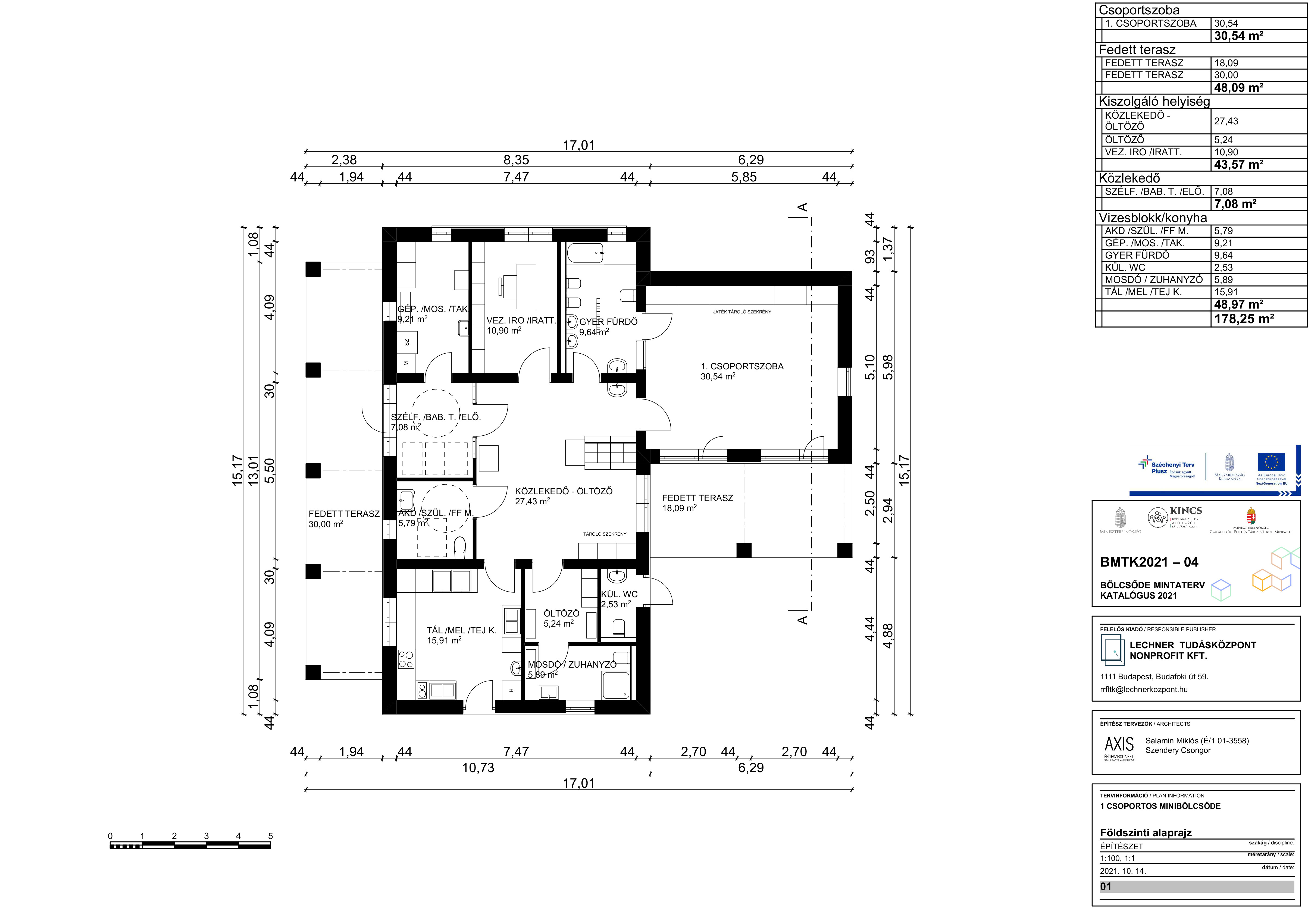
Type design


        Between 2021-2022, at the request of the Lechner Knowledge Center, we prepared the type plans of a 1-group mini-nursery, a 2-group, and a 4-group nursery based on the tender. The prepared plans can be adapted anywhere in Hungary, since then the implementation of our plans has begun in several places across the country.

713
715

All rights reserved © 2026