AXIS Architecture

HU
  • Home
  • Works
  • About
  • Contact

Kindergarten and nursery, Tarcal


Public building Miklós Salamin
07008

design year:                  2010

year of construction:    2012

architect:                       Miklós Salamin

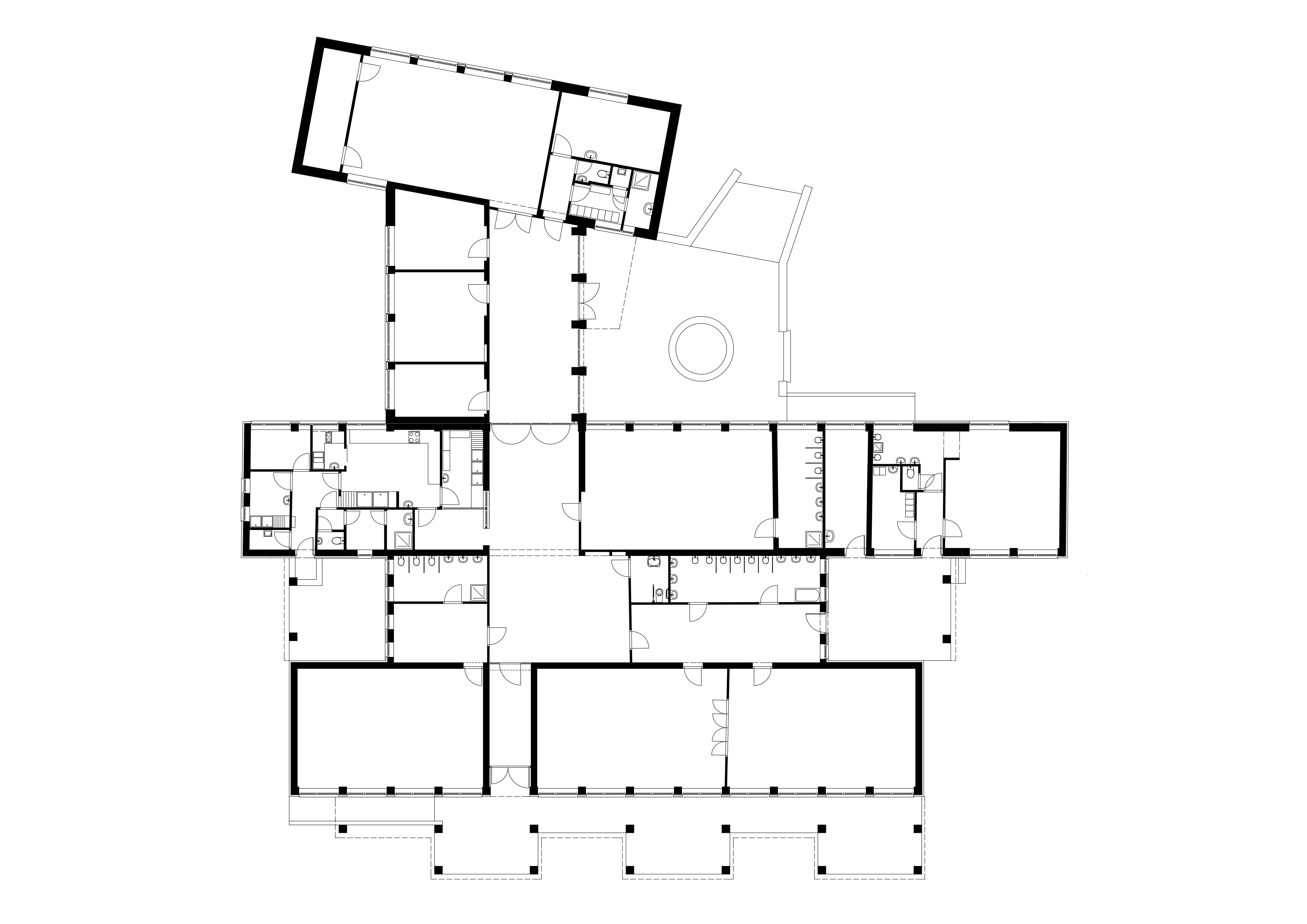
Alaprajz

Existing building


       The 3-room kindergarten in Tarcal, built in the 70s, has been remodeled several times over the years, additional group rooms were placed in place of service rooms and offices, and a triple-mass gable roof was built on top of the flat roof. The building deteriorated over the years, got wet and needed renovation.

07003
07005
07006

Renovation and expansion


        During the renovation and expansion, the necessary functions were: gymnasium, lobby, doctor's room, offices, the creation of covered terraces, the reconstruction of the roof structure and the thermal insulation of the facade. The new premises were placed in the wing of the building facing the street, and covered playgrounds were built towards the courtyard. The transformation and renovation of the building provided an opportunity to give the building a uniform appearance that matches the image of the settlement.

07031
Untitled 33 Pici
Helyszinrajz
07007
07013
07022
07010
07001
07025
07021
07027
07019
07026

All rights reserved © 2026