AXIS Architecture

HU
  • Home
  • Works
  • About
  • Contact

Generational home, Budakeszi


Dwelling house Csaba Varga
Fotó

location:                          Budakeszi

design:                             1997

cosntruction:                  1998

lead architect:               Varga Csaba

structural:                         Pongor László

mechanical eng.:          Fenyves Tamás

electrical:                        Tóth Zoltán

geodesy:                          Radványi Iván

photos:                             Varga Csaba

Fotó

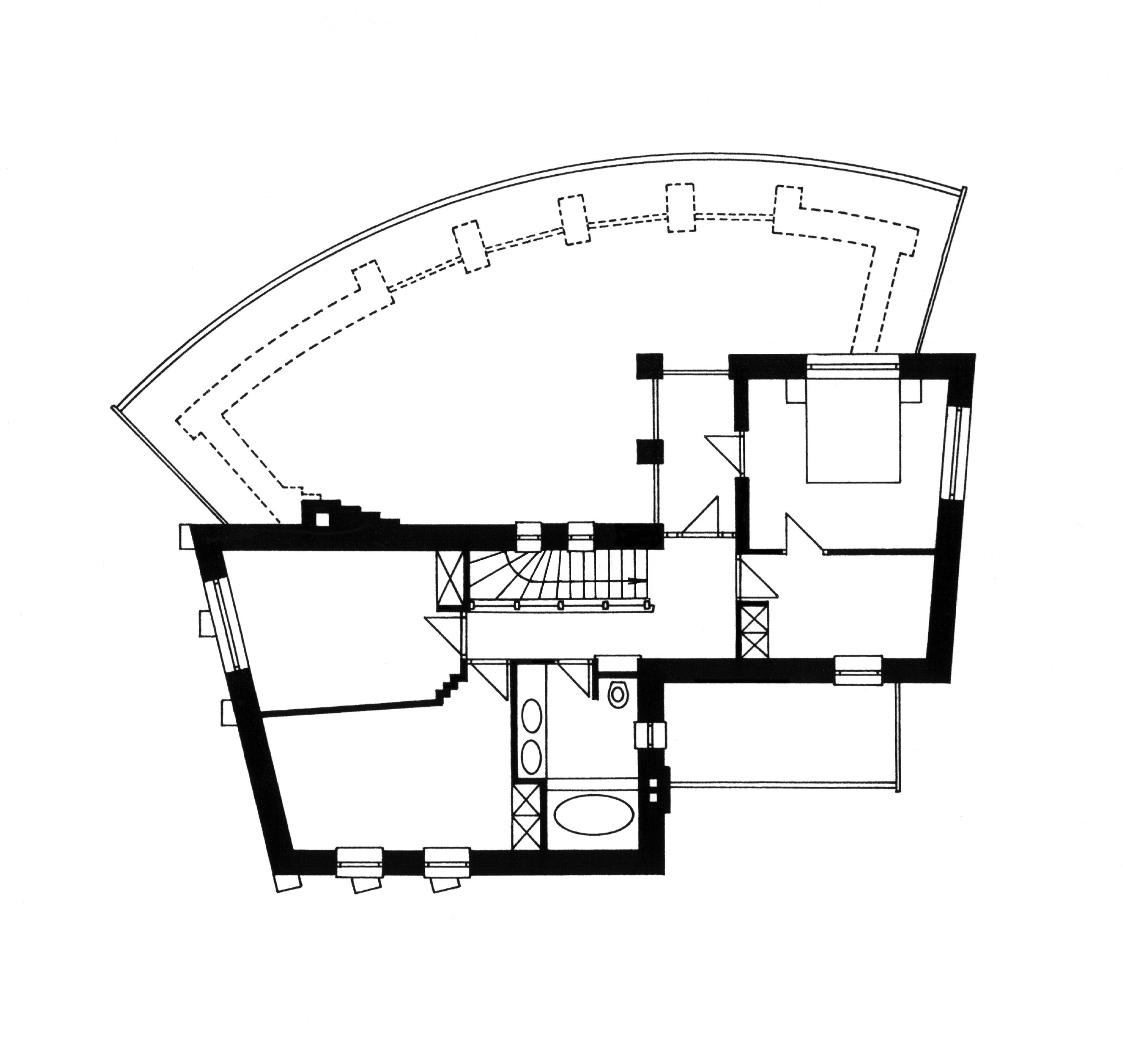
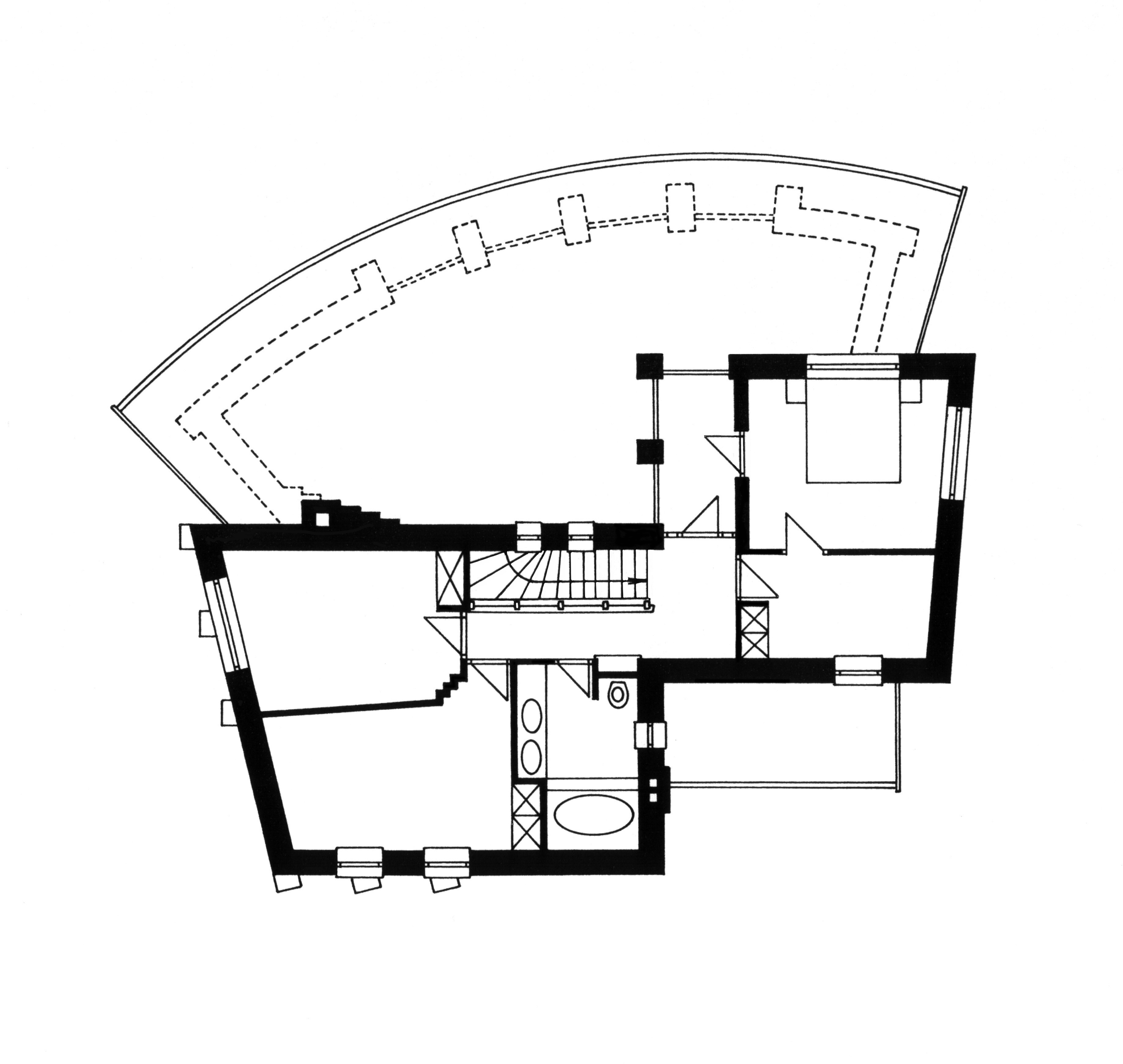
Detached house on a sloping plot, with a small flatlet (ground floor) and a larger apartment (ground floor + attic). The ground floor and the attic also have terraces facing the panorama. The entrance to the two apartments is from a common porch. The building is clad in small solid brick of Mátraderecske, with beaver-tail tile roofing on top. The brick cladding is also visible on the interior of the building.

Emelet alaprajz
Földszint alaprajz
Fotó

All rights reserved © 2026