AXIS Architecture

HU
  • Home
  • Works
  • About
  • Contact

Event space, Bogács


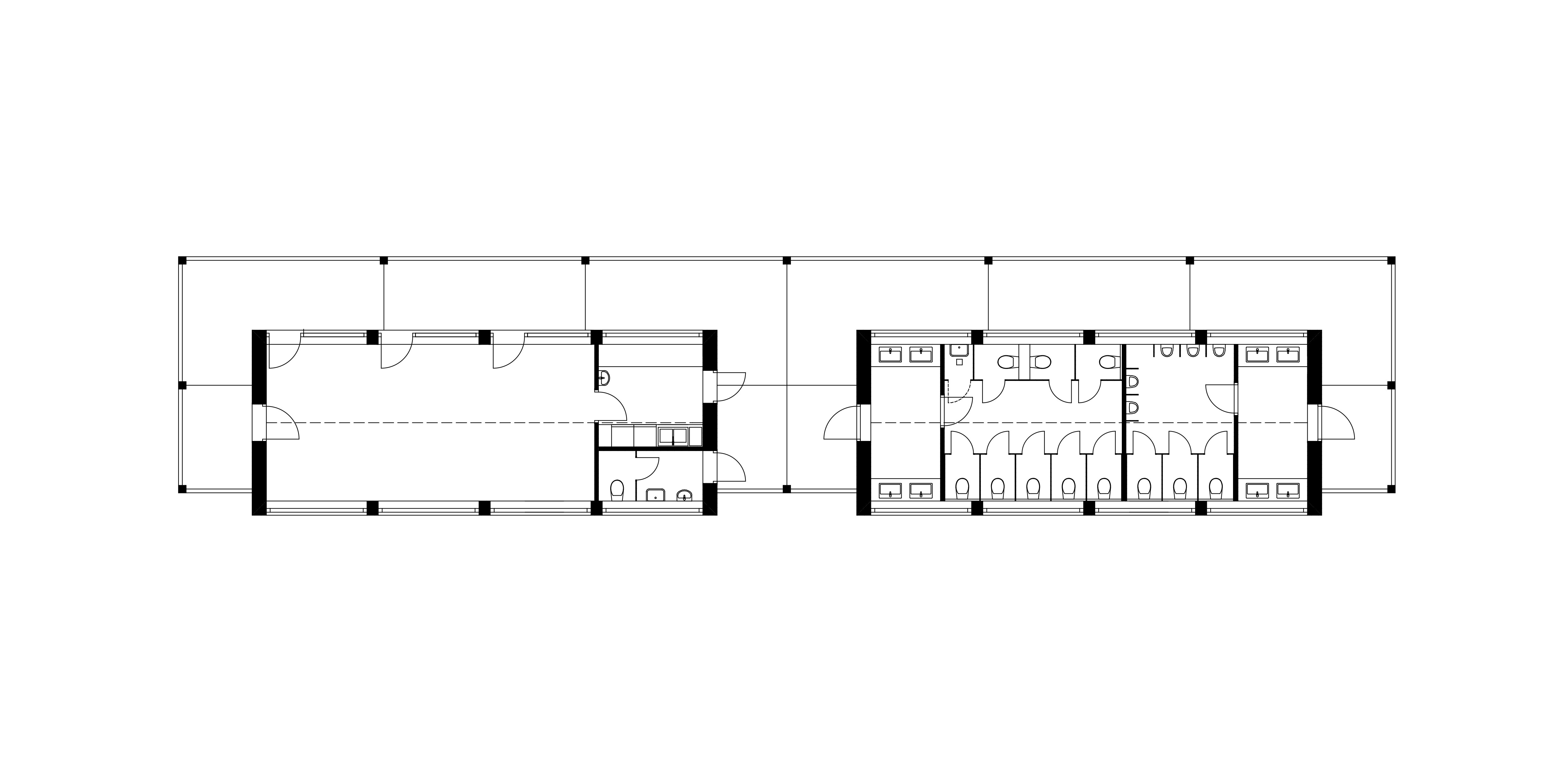
Public building Miklós Salamin
32 Sm

design year:                                  2019

year of construction:                   2021

architect:                                       Miklós Salamin

Kiszolgalo
Szinpad

Event space


In addition to the spa and beach spa, Bogács village is primarily famous for its outdoor programs. The municipality organizes several festivals, concerts and outdoor events every year. The purpose of the investment was to build a new event space with a permanent stage and the necessary service buildings instead of the temporary structures rented and erected for the duration of the events (open-air stage, washrooms, cafeteria).

14 Sm
01
01 Helysznrajz Layout
17 Sm
26 Sm

Buildings


The stage and the performer's dressing rooms on both sides are located on the western edge of the event space next to the stream, and the service building - with the public washrooms and the buffet - is located on the eastern side of the area, next to the road of Cserépfalu. The area is bordered on the north side by the cycle path, and on the south side by the parking area. The main entrance to the event space is also located on this side. Paved lanes and irregularly shaped sidewalks have been created on the event square parallel to the contour lines, where pavilions and tents can be placed during festivals and events. Water and electrical connections were built at the ends of these sidewalks.

23 Sm
27 Sm
11 Sm
28 Sm
38 Jg
39 Jg
29 Sm
30 Sm
31 Sm

All rights reserved © 2026