AXIS Architecture

HU
  • Home
  • Works
  • About
  • Contact

Cemetery chapel, Tarcal


Public building Miklós Salamin
10026b

design year:                 2014

year of construction:   2015

architect / furniture:    Miklós Salamin

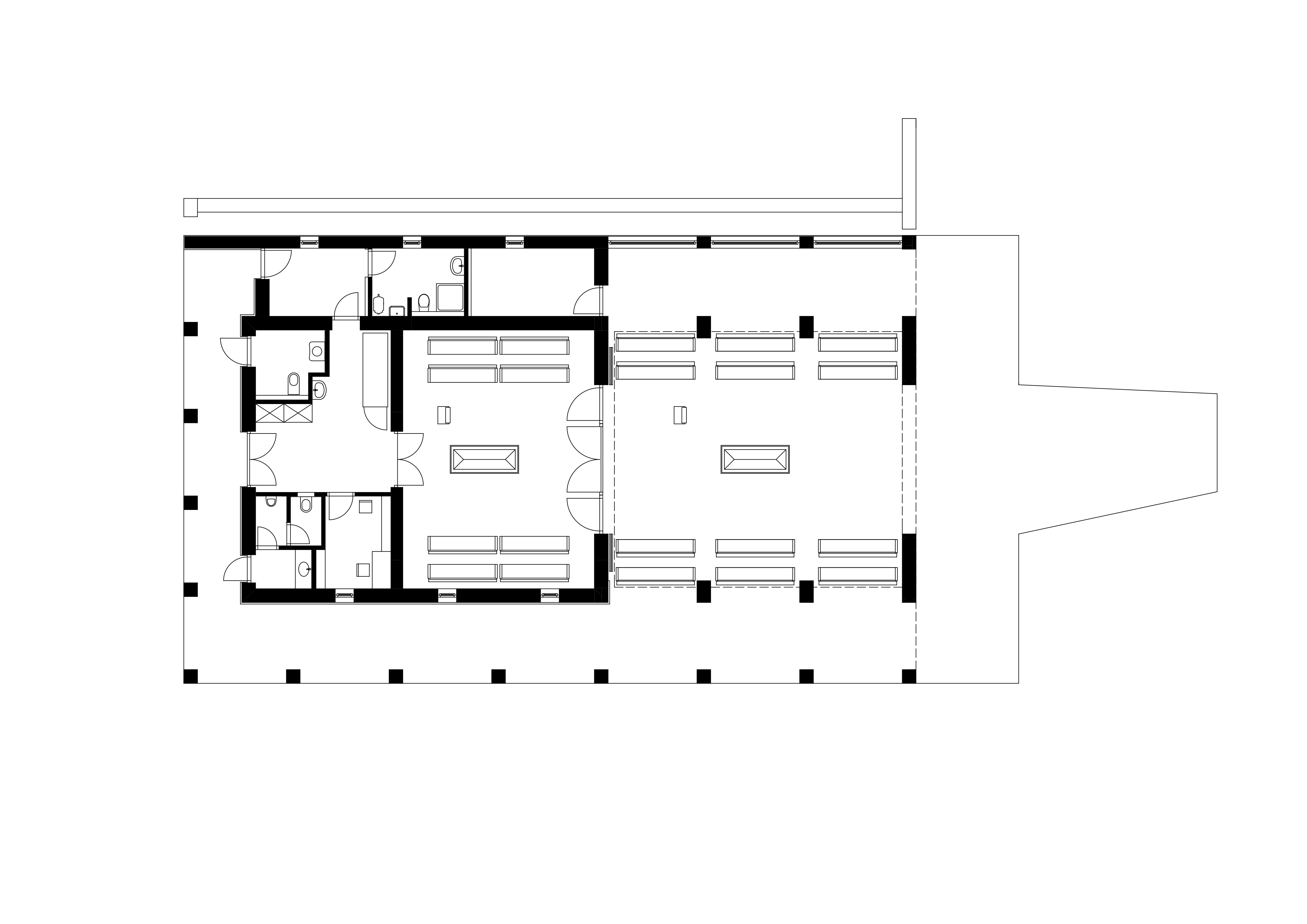
Alaprajz

        The Tarcal cemetery is used by the Reformed and the Catholics, so the planning task was to build an ecumenical cemetery chapel. The new funeral home was built half below ground level, taking advantage of the terrain. The outdoor mortuary was built from the main facade, and the indoor mortuary space behind it. The service functions can be accessed from the rear facade of the building, and the dead body is also brought in from the rear entrance. The northern part of the cemetery becomes accessible through the side porch of the building. Among the oak furniture of the funeral home, the coffin podium and the reading stand have a movable design and can also be used outside.

10034
10001
10018
10019
Ravatalozo Tarcal 10
 Dns0467
Ravatalozo Tarcal 14
 Dns0484
10028

All rights reserved © 2026