AXIS Architecture

HU
  • Home
  • Works
  • About
  • Contact

15-apartment building, Budapest, District 12


Dwelling house Miklós Salamin
1r2

design year:                  2017

year of construction:    2018

architect:                       Miklós Salamin

architectural team:      Zsófia Nyárai

Pince
2 Emelet

Block of flats


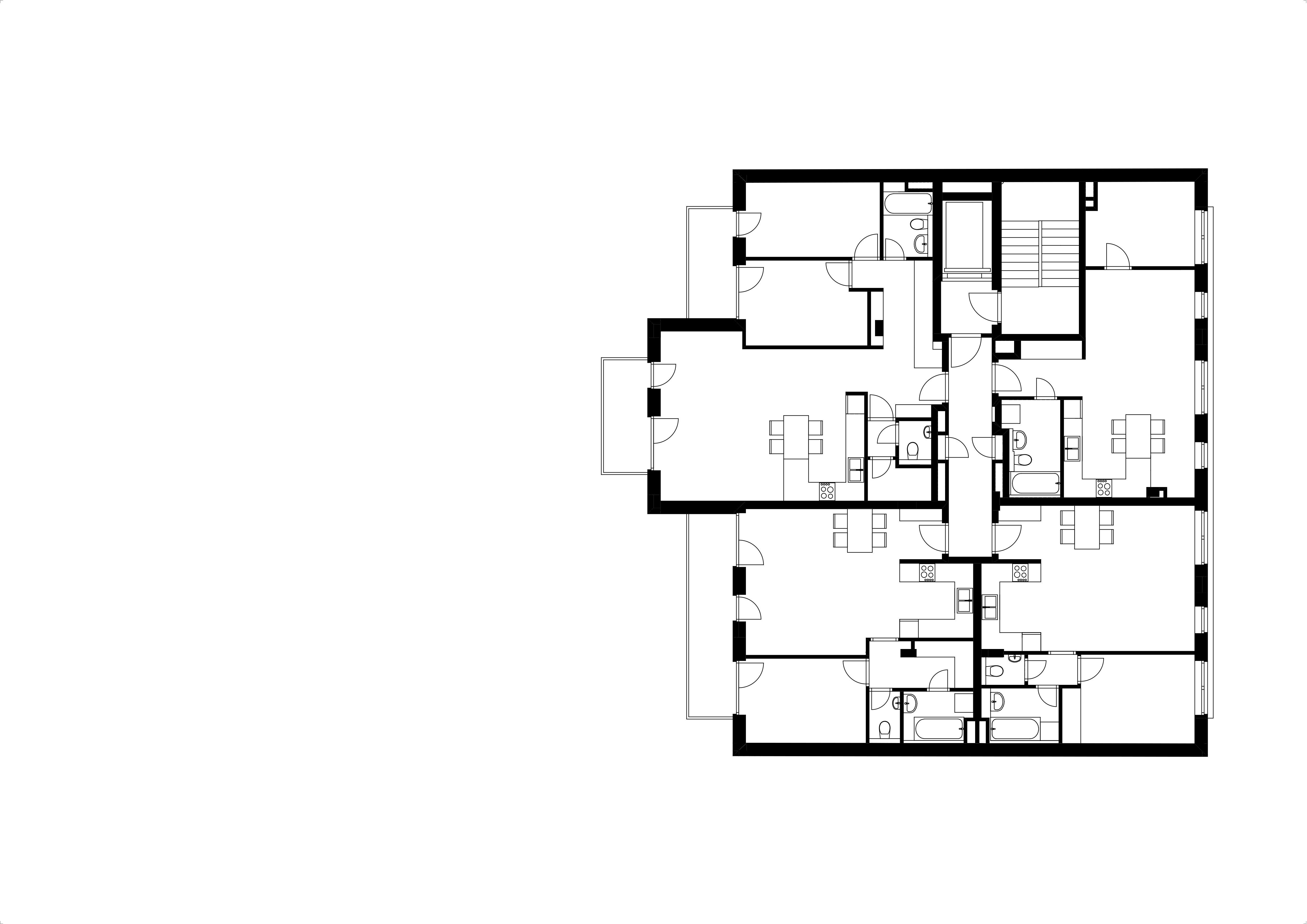
        Budapest, District 12 in a narrow one-way street, the 15-apartment building was built. A large part of the plot is under a basement, a 2-level underground garage was built here, in which 32 car parking spaces were located. The building is connected to the two neighboring buildings in a closed row, in the southern rear garden - above the underground garage - a green roof and a well-kept garden were created. The planned building has 2 basement levels + ground floor + 5 floors. Access to the two basement parking lots is via the car elevator from the street. On the ground floor, there are shops on the street side, offices on the garden side, and apartments on the upper floors. The apartments have balconies facing the south-facing garden.

Sal 5747 2
Sal 3804
Sal 3798
Sal 5816
Sal 3800

All rights reserved © 2026